Te koop Grond

Beschrijving van   

Vergelijk realty's

Te koop Grond

Grond Grond Grond Grond Grond Grond Grond Grond Grond Grond Grond Grond Grond Grond Grond Grond Grond Grond Grond
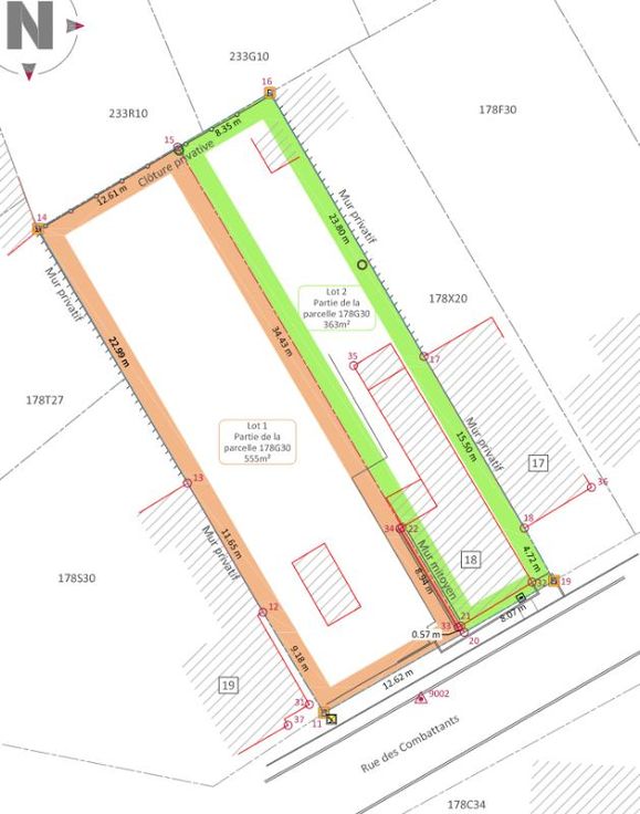
? Rue des Combattants 18+, Franière – Niché dans un quartier calme et agréable, ce terrain de 5 ares 55 représente une belle opportunité pour concrétiser votre projet de construction. ? Façade de 12,62m offrant diverses possibilités d’aménagement ? Orientation NO arrière, idéale pour profiter du soleil en soirée ? Garage en tôle et muret de façade avec grille déjà présents inclus dans la vente ? Raccordements disponibles à rue ? Situation villageoise paisible, tout en restant proche des commodités Un cadre parfait pour bâtir votre futur chez-vous dans un environnement serein ! ?? Visites libres
Type vastgoed Grond
Prijs 75.000