Te koop Hoogkwalitatieve nieuwbouwwoning met fantastisch groenzicht
TE KOOP - NIEUWBOUW MERE (Halfopen)
Wordt dit uw droomwoning? Deze nieuwbouwwoning (in opbouw) is gelegen in de Achterstraat in Mere. Het perceel is Oostgericht (tuin) en beschikt over een mooi groen uitzicht. De oppervlakte van het perceel is 345 m².
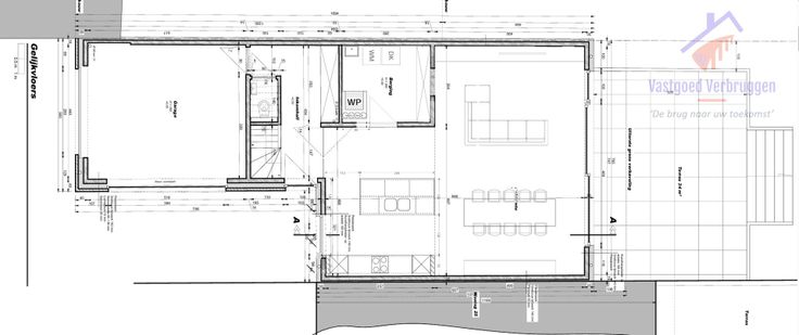
Het betreft een moderne woning met op het gelijkvloers een ruime living met open keuken, veel lichtinval en zicht op het terras en de tuin, mede dankzij de grote raampartij met deur en schuifraam achteraan. Naast de keuken is er een berging, die dienst doet als technische ruimte, maar waar ook nog voldoende bergruimte is. In de inkomhal is er plaats voorzien voor een vestiaire. Het toilet is ondergebracht onder de trap, om zo weinig mogelijk plaats te verliezen. De woning beschikt over een inpandige garage.
Aan de linkse zijde is de woning zo goed als vrijstaand, aan de rechtse zijde is enkel de living aangebouwd tegen de garage van de rechtse gebuur.
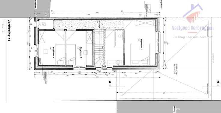
Op de verdieping zijn er 3 slaapkamers, een apart toilet en de badkamer.
Het gelijkvloers heeft een oppervlakte van 110 m², de verdieping is 60 m² groot.
De woning is een laag-energie woning en voldoet aan de isolatie - en EPB-eisen, door de installatie van een ventilatiesysteem, warmtepomp met overal vloerverwarming en zonnepanelen.
Zelfs aanleg oprit en tuin zijn inbegrepen in deze prijs!
De werken werden reeds gestart. Je hoeft dus niet lang te wachten om naar deze prachtwoning te verhuizen. Wij denken met je mee en personalisatie is no...
Renovatieplicht: NOT_APPLICABLE