Te huur Commercieel handelspand te huur te Avelgem

Beschrijving van   

Vergelijk realty's

Te huur Commercieel handelspand te huur te Avelgem

Commercieel handelspand te huur te Avelgem Commercieel handelspand te huur te Avelgem Commercieel handelspand te huur te Avelgem
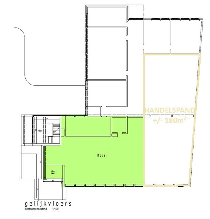
Op zoek naar een strategisch gelegen handelsruimte met uitstekende zichtbaarheid en parkeergelegenheid? Dit veelzijdige pand van 180 m² biedt talloze mogelijkheden: winkel, kantoor, vrij beroep,... - Ruime, flexibel in te delen ruimte - Mogelijkheid tot huren van extra parkeerplaatsen - Sanitaire aansluitingen voorzien - Verwarming via airco-units - EPC: Label C Meer informatie gewenst? Neem contact op met Beau van J-ESTATE via beau@j-estate.be of op 0494521962.
Type vastgoed Commercieel
Prijs 1.000
Bewoonbare opp. 180