Te koop Woning

Beschrijving van   

Vergelijk realty's

Te koop Woning

Woning Woning Woning Woning Woning Woning Woning Woning Woning Woning
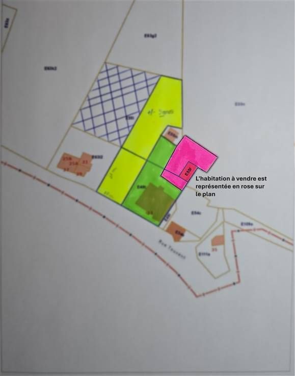
Sorry er is geen nederlandse vertaling beschikbaar. REF 7215 - Rue de Touvent - 6470 Sivry Dans un coin calme, reposant et proche du parc du Val Joly, découvrez cette maison d'habitation à rénover complètement. Avec plus de 60m2 au sol à rénover au rez-de-chaussée et la même superficie disponible au 1er étage, cette habitation peut vous permettre de créer une maison 2 ou 3 chambres pour vous et votre famille. Vous profiterez également de 2 garages et d'un très bel espace jardin pour profiter des beaux jours. Ce bien est une réelle opportunité à saisir pour celui ou celle qui souhaite se lancer dans une rénovation. RC : non encore déterminé Absence de PEB car absence de système de chauffage. Faire offres à partir de 79.000 € - sous réserve d’acceptation du vendeur. Infos et visites via l’agence Century21 Horizon de Saint-Ghislain au 065 600 400
Type vastgoed Huis
Prijs 79.000
Bewoonbare opp. 127
Aantal slaapkamers 2