Te koop Villa

Beschrijving van   

Vergelijk realty's

Te koop Villa

Villa Villa Villa Villa Villa Villa Villa Villa Villa Villa Villa Villa Villa Villa Villa Villa Villa
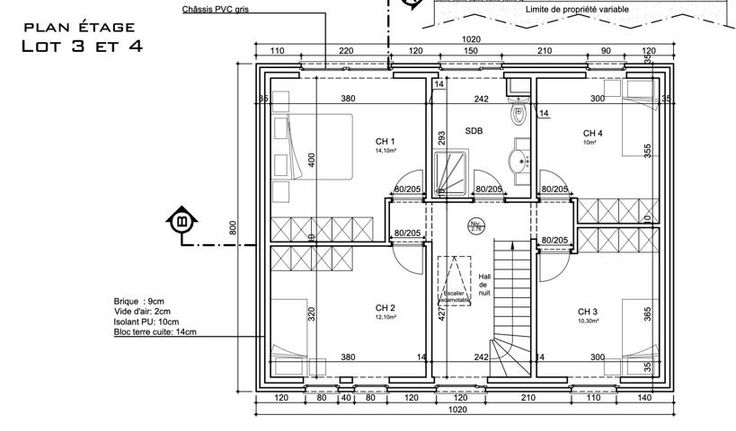
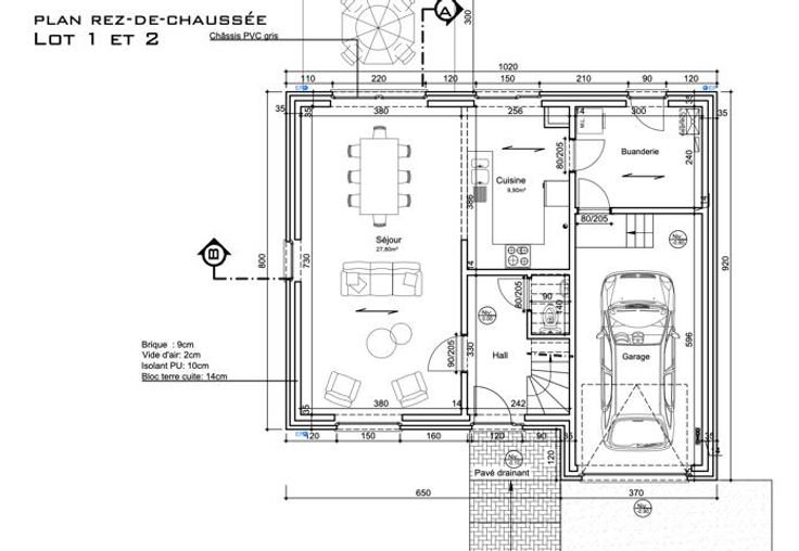
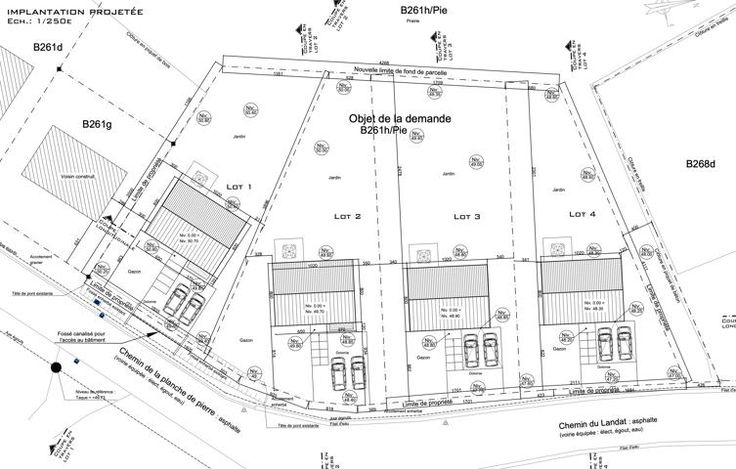
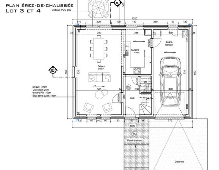
Alliance Partners vous propose un projet neuf de 4 villas 4 façades sur la commune de Mainvault dans l'arrondissement de Ath. Le projet s'étant du Chemin de la Planche de Pierre au Chemin du Landat. Ces 4 villas se composent comme suit : Rez-de-chaussée : Hall d'entrée, wc avec lave main, living avec cuisine ouverte (38 m2), buanderie (7,2m2), garage 1 voiture. Étage 1 : Hall de nuit , chambre 1 (14,1 m2), chambre 2 (12,1 m2), chambre 3 (10,3 m2), chambre 4 (10 m2), salle de bain avec wc (7,1 m2). Combles : Grenier aménageable (45 m2). Techniques : Chauffage par pompe à chaleur (chauffage sol au rez-de-chaussée et radiateurs à l'étage), production d'eau chaude : pompe à chaleur avec boiler intégré, raccordement à l'égout, citerne d'eau de pluie avec pompe (5000 litres), ventilation Type C+. Les finitions sont personnalisables : Carrelage, sanitaire, portes,... Vente sous la loi Breyne (paiements échelonnés en fonction de l'avancement du chantier) Les prix affichés ne comprennent pas la cuisine équipée et l'aménagement des abords. Les prix sont compris hors frais d'achat, hors frais de raccordements et hors frais de géomètre Lot 1 : 359.000 euros - Terrain de 5,33 ares - Largeur à rue : 18,05 m - Surface bâtie : 167,6 m2 Lot 2 : 369.000 euros - Terrain de 5,97 ares - Largeur à rue : 24,09 m - Surface bâtie : 167,6 m2 Lot 3 : 369.000 euros - Terrain de 6,88 ares - Largeur à rue : 17,01 m - Surface bâtie : 163,2 m2 Lot 4 : 349.000 euros - Terrain de 5,38 ares - Largeu
Type vastgoed Huis
Prijs 349.000
Bewoonbare opp. 167
Aantal slaapkamers 4
Aantal badkamers 1