Te koop Zuidgerichte bouwgrond met goedgekeurd plan

Beschrijving van   

Vergelijk realty's

Te koop Zuidgerichte bouwgrond met goedgekeurd plan

Zuidgerichte bouwgrond met goedgekeurd plan
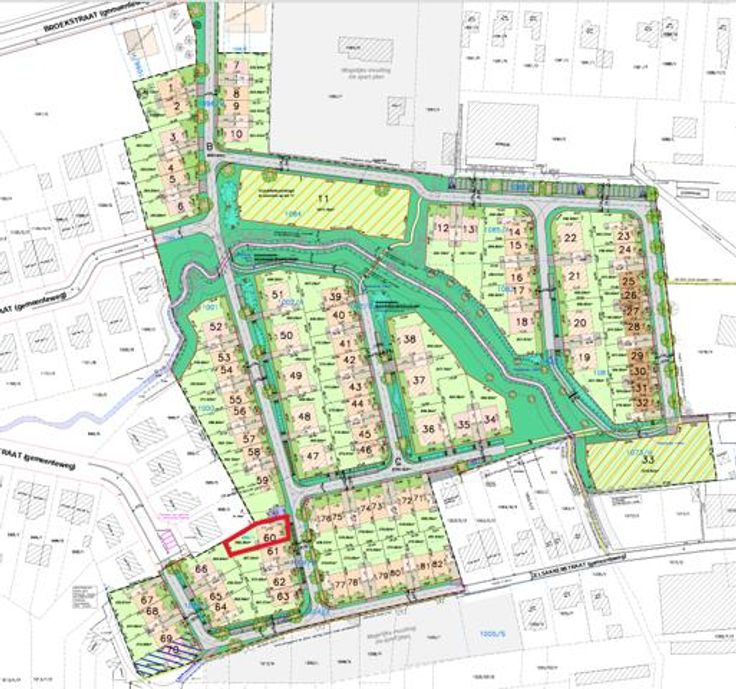
Dit zuidgerichte bouwperceel voor een halfopen bebouwing van 298 m² ligt in een rustige, doodlopende straat binnen een nieuwe verkaveling. Op slechts 200 meter bevinden zich 2 supermarkten, bakker, slager, gemeentehuis, lagere school en bushalte. De bouwbreedte bedraagt 8 m en de bouwdiepte 12 m. Naast de woning mag nog een carport of garage van 3 m op 7 m gebouwd worden plus nog een extra berging van 2 m op 3 m. Als u het bestaande plan zou volgen, kunt u onmiddelijk beginnen te bouwen na aankoop.
Type vastgoed Grond
Prijs 119.500