Te koop Bouwgrond

Beschrijving van   

Vergelijk realty's

Te koop Bouwgrond

Bouwgrond Bouwgrond Bouwgrond Bouwgrond Bouwgrond Bouwgrond Bouwgrond Bouwgrond Bouwgrond Bouwgrond Bouwgrond Bouwgrond Bouwgrond
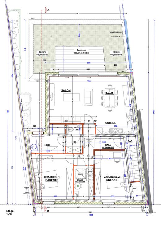
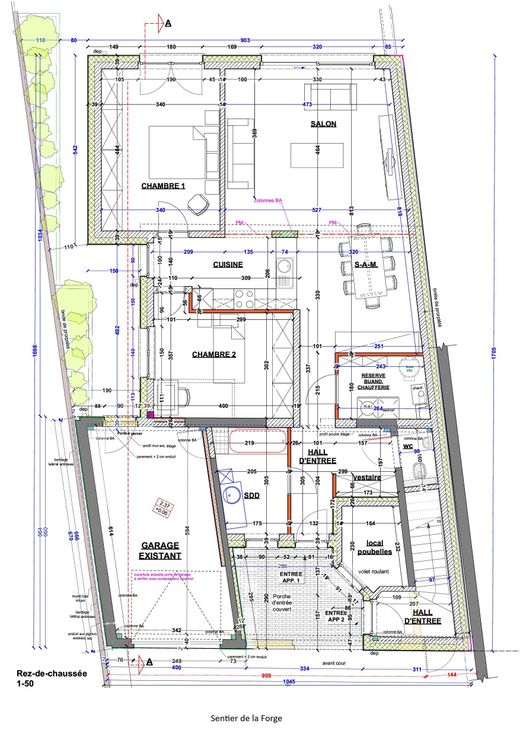
Ensemble de 2 garages sur un terrain à bâtir de 3a20ca (+/-10m de façade sur 30m de profondeur). Avec permis d’urbanisme octroyé en 2024 pour transformation en immeuble de 2 appartements de +/- 100 m² chacun avec 1 garage, 3 places de stationnement, 2 entrées séparées, toitures plates et crépi en façades. Chaque appartement dispose de : 2 Chambres, Salon/Living, Cuisine, Salle de bain, WC séparé, Buanderie, Terrasse/Balcon (+ Jardin privatif au rez-de-chaussée). Les études suivantes ont déjà été réalisées : essais de sol, étude ingénieur complète, PEB, plans d’exécution et métrés. Possibilité de démarrer les travaux dès la signature de l'acte ! Les garages sont déjà équipés d’un compteur électrique, eau et gaz. Portes des garages motorisées. Situé dans une rue calme, à proximité immédiate des autoroutes, des transports en communs et des commerces.
Type vastgoed Grond
Prijs 90.000