Te koop Huis

Beschrijving van   

Vergelijk realty's

Te koop Huis

Huis Huis Huis Huis Huis Huis Huis Huis Huis Huis Huis Huis Huis Huis Huis Huis Huis Huis Huis Huis Huis Huis Huis Huis Huis
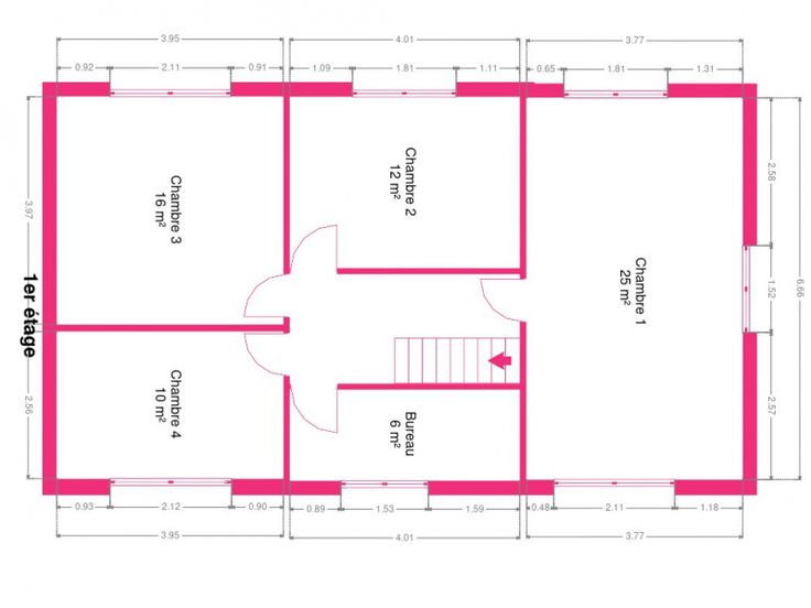
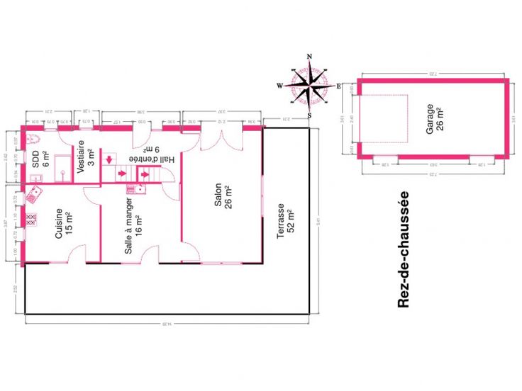
Vendu - Située dans le charmant village de Mehaigne, à la limite de la province du Brabant-Wallon, cette maison 4 façades offre un cadre de vie paisible et verdoyant, idéal pour les amateurs de tranquillité. Implantée sur une parcelle de 1 060 m², elle propose une superficie habitable de 164 m².Au rez-de-chaussée, d?une superficie de 77 m², vous trouverez un salon lumineux de 26 m², une salle à manger de 16 m², une cuisine équipée de 15 m², un hall d?entrée ainsi qu?une salle de bain rénovée en 2021. À l?étage, la maison dispose de quatre chambres spacieuses ainsi que d?un bureau, parfait pour le télétravail ou un espace supplémentaire selon vos besoins. Elle comprend également un grenier non aménageable et une cave. Côté annexes, la maison est dotée d?un garage et de deux abris de jardin. Pour votre confort, elle est équipée d?un chauffage central ainsi que d?un système de pompe à chaleur. Grâce à ses 27 panneaux photovoltaïques, elle bénéficie d?une consommation énergétique optimisée. Toutes les fenêtres du rez-de-chaussée sont munies de volets. De nombreux aménagements extérieurs ont été réalisés, notamment des terrasses, permettant de profiter pleinement du cadre verdoyant.Sans vis-à-vis et située dans une rue très calme, cette maison représente une véritable opportunité pour toute personne en quête de sérénité et de nature. Ne tardez pas à nous contacter au 081/ 22 81 00 pour plus d?informations ou pour organiser une visite.
Type vastgoed Huis
Prijs 395.000
Bewoonbare opp. 164
Aantal slaapkamers 4
Aantal badkamers 1