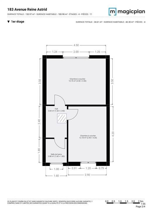
Sorry er is geen nederlandse vertaling beschikbaar. Charmante maison rénovée de 145 m² (superficie plancher chauffée d'après PEB), idéalement située dans un quartier calme. Elle comprend un hall d'entrée, un WC indépendant, une salle à manger, un salon, et une cuisine équipée créant un espace de vie convivial car tout est ouvert. À l'étage, le hall de nuit mène à deux chambres et à une salle de bain. Grenier aménagé. Le sous-sol dispose de deux grandes caves, dont une avec WC. À l'extérieur, vous profiterez d'une belle terrasse. Caractéristiques : chauffage central au gaz, châssis double vitrage PVC et PEB B ! A voir! La maison en vidéo: https://www.youtube.com/watch?v=bN9biBg5lgg