Te koop Huis

Beschrijving van   

Vergelijk realty's

Te koop Huis

Huis Huis Huis Huis Huis
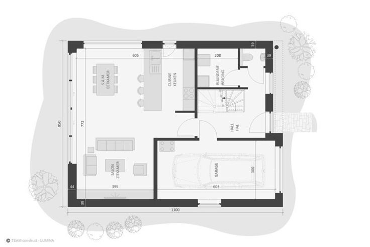
Dans une rue très calme, proche des grands axes, projet de spacieuse villa basse énergie 100% traditionnelle k30 (triple vitrage,14 cm d'isolation dans les murs, entre 22 et 44 cm d'isolation en toiture,12 cm d'isolation dans le sol, panneaux solaires photovoltaiques compris) terrain de 1350 m². La maison proposée se compose d'un beau living avec grandes baies vitrées, cuisine ouverte (non comprise), d'une buanderie, de 3 chambres, 1 dressing, de 1 sdb (meuble compris) + 1 sdd. Nombreuses possibilités de personnaliser ou de modifier le projet (possibilité d'agrandissement à petit prix). Grand choix de matériaux sans supplément. Finition clé sur porte en construction 100% traditionnelle avec cahier des charges très complet. Maison témoin ouverte chaque samedi et dimanche de 14h00 à 18H00 à Chaumont-Gistoux SUR rendez-vous: Chemin du Bonly face au n°67. Plus d'information www.teamconstruct.be ou 02/556.47.56. Prix hors frais. Vente sous régime T.VA. et droit d'enregistrement. PEB exceptionnel. Prix total: 527.537€ ttc (T.V.A. comprise, honoraire architecte compris, estimation de frais de raccordement compris, frais de notaire et d'enregistrement sur le terrain compris, bilan énergétique compris, une réserve de fondation comprise, coordinateur de sécurité compris, le sondage du terrain compris, l'étude de stabilité comprise, le PEB compris, ...) Plus d'information www.teamconstruct.be
Type vastgoed Huis
Prijs 443.881
Bewoonbare opp. 185
Aantal slaapkamers 3
Aantal badkamers 2