Te koop Appartement

Beschrijving van   

Vergelijk realty's

Te koop Appartement

Appartement Appartement Appartement Appartement Appartement Appartement Appartement Appartement Appartement Appartement Appartement Appartement Appartement Appartement Appartement Appartement Appartement Appartement Appartement
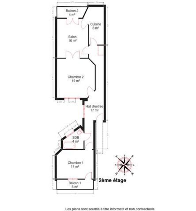
Schuman, Cinquantenaire, Ambiorix. Situation géographique de premier choix, au cœur du quartier européen, à proximité immédiate du Parc du Cinquantenaire et des Squares Ambiorix et Marguerite. Cet élégant et lumineux appartement de style Art Nouveau se situe dans un petit immeuble historique sans ascenseur, aux faibles charges, conçu par l'architecte François Tilley et rénové avec soin en 2010. Ce bien offre une combinaison parfaite de charme historique et de confort moderne. Avec ses hauteurs sous plafond et ses éléments d’époque, l’appartement propose une superficie habitable de ±85 m², comprenant un salon lumineux agrémenté d’une baie vitrée (bow-window) et d’un accès à un balcon orienté est-sud, apportant une belle luminosité à la cuisine et au séjour, deux chambres spacieuses, une salle de bains fonctionnelle, ainsi qu’une cuisine équipée. Ce bien bénéficie également de châssis double vitrage, de deux balcons, d’un chauffage central au gaz, de compteurs individuels pour l’eau et l’électricité, et d’un parlophone pour votre confort. Avec un PEB de niveau D+ et une électricité conforme, cave et mansarde de +/- 15 m2, cet appartement représente une opportunité exceptionnelle. Excellent investissement, demande croissante dans le quartier (meuble et non meublé). Un bien rare à ne pas manquer, offrant un cadre de vie unique dans un quartier dynamique et historique, à proximité de toutes les commodités : gare et métro Schuman, parcs, restaurants, bars, supermarchés, ainsi qu’un
Type vastgoed Appartement
Prijs 339.000
Bewoonbare opp. 85
Aantal slaapkamers 2
Aantal badkamers 1