Te koop Bouwgrond

Beschrijving van   

Vergelijk realty's

Te koop Bouwgrond

Bouwgrond Bouwgrond Bouwgrond Bouwgrond Bouwgrond Bouwgrond Bouwgrond Bouwgrond Bouwgrond Bouwgrond
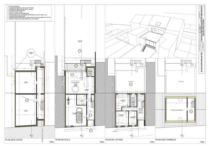
Sorry er is geen nederlandse vertaling beschikbaar. INFOS & VISITES avec Bertrand Dubuisson au 0475/48.53.04 ou bertrand.d@connexionimmo.be Terrain à bâtir, situé dans une rue à cul de sac, calme et proches des axes, avec 8.94 m de façade et +-80 m de long. Le terrain est vendu avec permis d'urbanisme accordé pour la construction d'une habitation. Celle-ci est prévue comme suit : Au rez-de-chaussée : hall d’entrée, salle de bains avec wc, séjour avec cuisine ouverte de 55.58 m², espace cellier et un grand garage de 40 m². Au 1er étage : hall de nuit desservant 3 chambres (15.23, 14.29 et 8.72 m²) et une seconde salle de bains. Au 2éme étage : un grenier aménageable de +- 40m². Sous-sol : 2 caves d’un total de +- 80m²donnant accès vers le jardin. Extérieur : terrasse et jardin Techniques : Maison basse énergie / citerne d’eau de pluie de 10 m³ / raccordable à l’égout, gaz, eau et électricité / essais de sols effectués / permis octroyé le 12.04.2023. Information : L’architecte est prévu pour 12 visites d’un suivi de chantier gros œuvre couvert fermé. Prix : offre à partir 99.000 euros. (Les informations publiées sur ce site ont un caractère indicatif et non contractuel ; les propriétaires se réservent le droit d'accepter l'offre de leur choix)
Type vastgoed Grond
Prijs 99.000