Te koop Villa

Beschrijving van   

Vergelijk realty's

Te koop Villa

Villa Villa Villa Villa Villa Villa Villa Villa Villa Villa Villa Villa Villa Villa Villa Villa Villa Villa Villa Villa
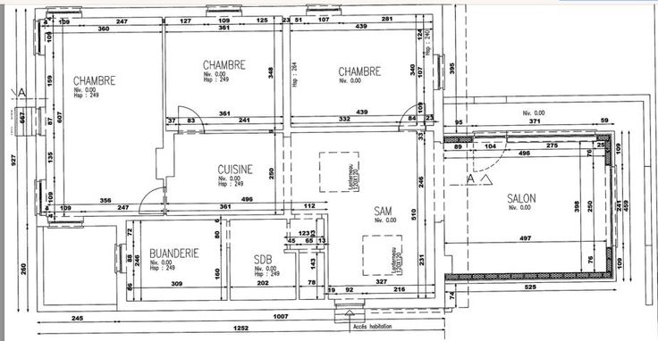
Actualimmo vous propose cette charmante villa plain-pied à rafraîchir avec jardin et terrasse à Carnières. Surface selon PEB: 134 m2. Composition : un salon ouvert sur la salle à manger en open space de 41 m2, une cuisine équipée de 9 m2, 3 chambres de 13,15 et 22 m2, une salle de bain 5 m2 avec une douche, un WC séparé, un coin buanderie de 8 m2. Confort : Chauffage central au gaz ainsi qu'un chauffage au pellet. Châssis double vitrage en bois à l'avant et en PVC à l'arrière. Plateforme en zinc en bon état général. Electricité conforme jusqu'en 2037 ! Présence de panneaux photovoltaÏques ainsi qu'un adoucisseur d'eau. Située à proximité de toutes commodités, exposition solaire sud-ouest. Faire offre à partir de 180.000€. PEB: G. Revenu cadastral : 714€. Le propriétaire se réserve le droit exclusif d'apprécier la hauteur et la qualité des offres. Les informations publiées sur ce site ont un caractère indicatif et non contractuel. Infos et visites sur RDV avec LORENZO au 0494 08 29 18. www.actualimmo.be / IPI 800018. Vous vendez votre bien ? N'hésitez pas à nous contacter pour une expertise gratuite et sans engagement !
Type vastgoed Huis
Prijs 180.000
Bewoonbare opp. 134
Aantal slaapkamers 3
Aantal badkamers 1