Te huur Uitstekende HORECA-locatie te huur – Brass...

Beschrijving van   

Vergelijk realty's

Te huur Uitstekende HORECA-locatie te huur – Brasserie op de Place d

Uitstekende HORECA-locatie te huur – Brasserie op de Place d Uitstekende HORECA-locatie te huur – Brasserie op de Place d Uitstekende HORECA-locatie te huur – Brasserie op de Place d Uitstekende HORECA-locatie te huur – Brasserie op de Place d
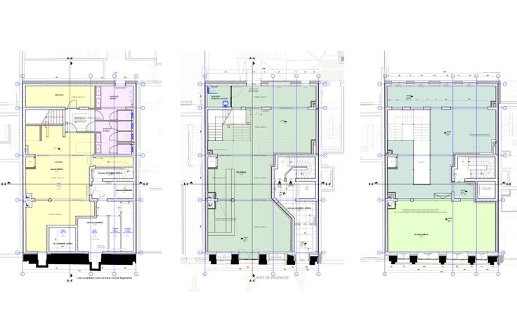
Gelegen in het hart van Brussel, op de levendige Place de Brouckère, biedt deze uitzonderlijke HORECA-ruimte (voorheen het Cheesecake Café) een ideale locatie voor een brasserie. Kenmerken van de ruimte: • Kelder van 136 m²: Perfect voor de installatie van een keuken, sanitair en opslagruimte. • Gelijkvloers van 175 m²: Inclusief een inkomhal van 40 m². • Mezzanine van 150 m²: Ideaal om de capaciteit te vergroten. • Mooi terras: Aan te passen aan uw wensen. De ruimte wordt casco opgeleverd begin 2026, zodat u deze naar eigen smaak kunt inrichten. Geïnteresseerd? Voor meer informatie, contacteer ons op: 📞 0499 599283
Type vastgoed Commercieel
Prijs 12.000
Bewoonbare opp. 461