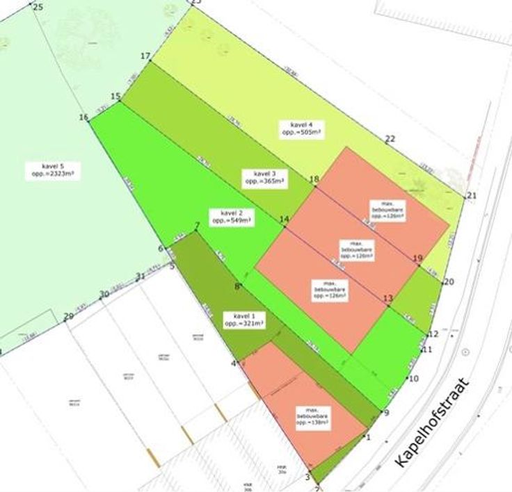
Te koop Perceel grond 41 are - breedte 44,5 m

Beschrijving van   

Vergelijk realty's

Te koop Perceel grond 41 are - breedte 44,5 m

Perceel grond 41 are - breedte 44,5 m Perceel grond 41 are - breedte 44,5 m Perceel grond 41 are - breedte 44,5 m Perceel grond 41 are - breedte 44,5 m Perceel grond 41 are - breedte 44,5 m Perceel grond 41 are - breedte 44,5 m
Te koop in Erpe : perceel grond van 41 are gelegen in woongebied met een straatbreedte van 44m. Dienst stedenbouw geeft mondeling akkoord voor verkavelen in 4 percelen voor 3 half open bebouwing en 1 gesloten bebouwing OF 3 half open bebouwingen en 1 open bebouwing in 2e bouwlijn Landelijke ligging is zeker een troef Voor meer info, contacteer ons 052 52 80 30 - info@goemanvastgoed.be
Type vastgoed Grond
Prijs 549.000