Te huur Industriële gebouwen

Beschrijving van   

Vergelijk realty's

Te huur Industriële gebouwen

Industriële gebouwen Industriële gebouwen Industriële gebouwen Industriële gebouwen Industriële gebouwen Industriële gebouwen Industriële gebouwen Industriële gebouwen Industriële gebouwen Industriële gebouwen
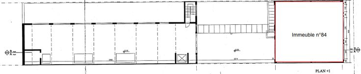
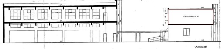
Entrepôt réparti sur 2 niveaux. Présence d'un monte-charge, de racks de stockage, d'une zone bureau et d'une cour intérieure. Accessibilité via porte-sectionnelle (3m de large sur 4m de haut).
Type vastgoed Commercieel
Prijs 3.500