Te huur Handelszaak

Beschrijving van   

Vergelijk realty's

Te huur Handelszaak

Handelszaak Handelszaak Handelszaak Handelszaak Handelszaak Handelszaak Handelszaak Handelszaak Handelszaak Handelszaak
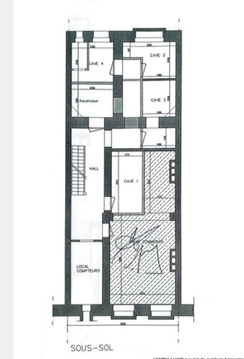
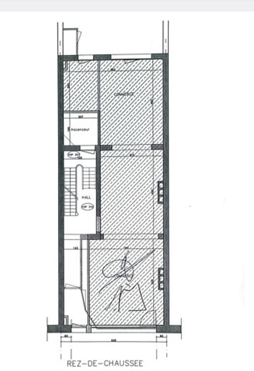
Centre de Bruxelles: Stalingrad/ Place Rouppe: belle surface commerciale de 65 M² + caves en sous-sol de 24 M². Libre d'occupation octobre 2024. Loyer de 1.500 €/ mois + 110 €€/mois de précompte immobilier. Renseignements et visites au 0475/43.21.47.
Type vastgoed Commercieel
Prijs 1.500
Bewoonbare opp. 65