Te koop Huis

Beschrijving van   

Vergelijk realty's

Te koop Huis

Huis Huis Huis Huis Huis Huis Huis Huis Huis Huis Huis Huis Huis Huis Huis Huis Huis Huis Huis Huis
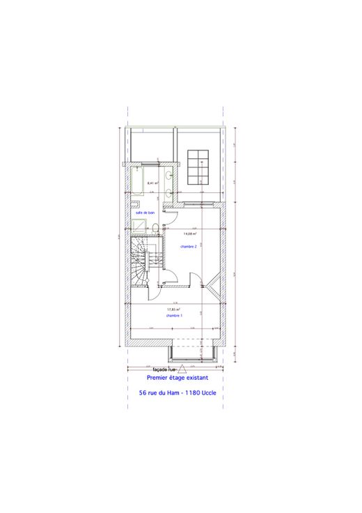
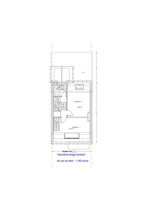
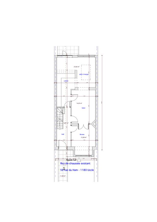
Maison 2 façades idéalement située au Fort-Jaco, rez-de-chaussée : bureau en façade avant (possibilité profession libérale), jardinet avant, salon, salle à manger, parquet, donnant sur une cuisine ouverte équipée (cuisinière gaz, hotte, lave-vaisselle, frigo) et sur la terrasse et le jardin arrière. Entresol entre le rez-de-chaussée et le 1er étage : salle de bains (bain, lavabo, wc). Plancher au sol aux étages. 1er étage : Ch1 arrière (14 m2) avec 2ème accès vers la salle de bains, Ch2 avant (20m2). 2ème entresol : salle de douche (douche, lavabo, wc). 2ème étage : Ch3 arrière (12 m2), Ch4 (16 m2) avant avec accès vers une mezzanine ouverte (8m2). Caves en sous-sol, jardinet à l'avant de la maison également. Chaudière au gaz à condensation, double vitrages. Agent Immobilier IPI : 501.399 Agence s'abstenir merci
Type vastgoed Huis
Prijs 650.000
Bewoonbare opp. 175
Aantal slaapkamers 4
Aantal badkamers 1