Te koop Huis

Beschrijving van   

Vergelijk realty's

Te koop Huis

Huis Huis Huis Huis Huis Huis Huis Huis Huis
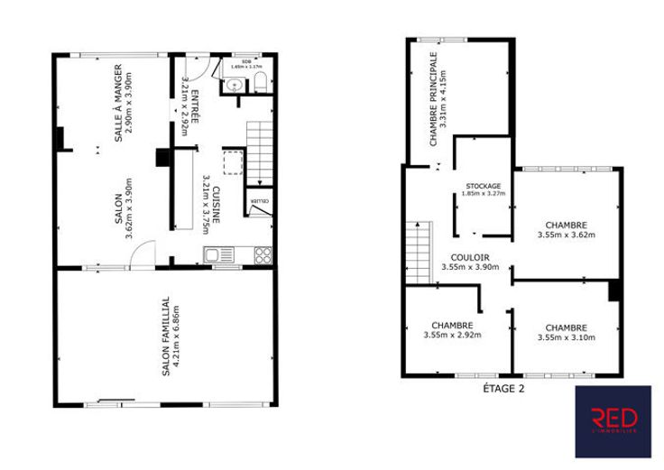
RED, c'est l'immobilier - vous présente cette maison à finaliser ! Faire offre à partir de 159.000 euros C'est à Flémalle que WAW vous propose cette maison pleine de potentiel ! Grâce aux gros travaux déjà réalisés, tels que les nouveaux châssis, la toiture isolée et une nouvelle annexe, il ne reste plus qu'à finaliser les finitions pour en faire la maison de vos rêves. Laissez-vous séduire par nos images 3D et projetez-vous dans les multiples possibilités offertes par cette propriété. Composée de 3 chambres, ses 162 m² offrent tout l’espace nécessaire pour accueillir votre famille et personnaliser votre cadre de vie. Sa localisation idéale permet un accès rapide aux grands axes routiers et à toutes les commodités. Surface PEB : 161 m² Surface mesurée par agence : 162 m² Surface parcelle : 273 m² A rénover Jardin Garage Emplacements extérieurs pour voitures 3 chambres 1 espace salle d'eau WC visiteur 1 cuisine RC : 661 euros PEB F - ‭20240705019802‬ - 74 897 kWh/an Les informations sont données à titre indicatif et non-contractuel. Infos et demandes de visites : Arnaud - 0479 16 86 06 - arnaud.ditte@immored.be
Type vastgoed Huis
Prijs 159.000
Bewoonbare opp. 161
Aantal slaapkamers 3
Aantal badkamers 1