Te koop Benedenverdieping

Beschrijving van   

Vergelijk realty's

Te koop Benedenverdieping

Benedenverdieping Benedenverdieping Benedenverdieping Benedenverdieping Benedenverdieping Benedenverdieping Benedenverdieping Benedenverdieping Benedenverdieping Benedenverdieping
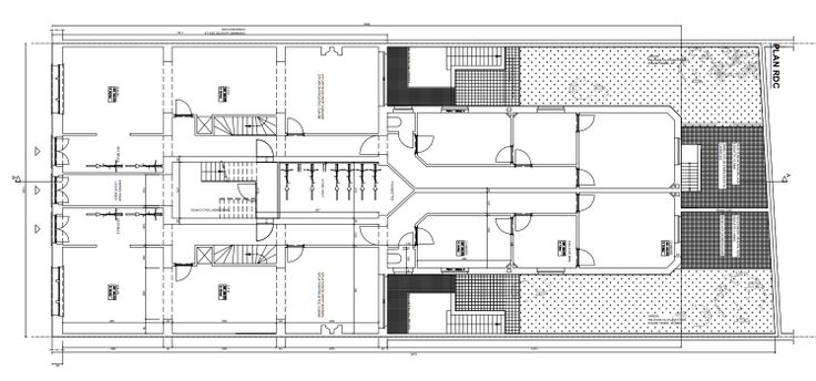
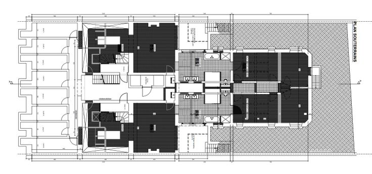
Dans l'un des quartiers les plus demandés d'Ixelles, à un jet de pierre de la célèbre place Flagey se trouve un appartement atypique avec jardin dans un immeuble de caractère ayant conservé touts ces atouts d'époques (sous-bassements décoratifs, moulures, hauts-plafonds, cheminées, grands châssis). Le bien est idéal pour une famille nombreuse ou amateur de grand espaces au cœur de Bruxelles, laissez-vous inspirer par les lieux et libre à votre imagination pour vos travaux (un permis a déjà été octroyé, travaux a réaliser), Au niveau du rez selon permis d'urb. : (126m² hab net) spacieux hall d'entrée avec porte individuelle (séparé à l'immeuble commun), trois belles pièces en enfilade (salon – s.à.m – cuisine) donnant accès à une terrasse vers le jardin (66m²), un couloir parcourant l'ensemble de l'appartement, à l'arrière deux belles chambres et grande salle de bains, toilette séparée. Au niveau du sous-sol (94m² hab. Net) : escalier privatif dans l'appartement, un magnifique espace totalement dédié en master-bedroom : une belle chambre donnant sur la cours basse, une grande pièce pour un dressing, une spacieuse salle de bain avec bain et douche, une toilette séparée, et une grande pièce divers pouvant servir de salle de sport/jeux/.... et une cave. Travaux à réaliser suivant permis / compteur eau-gaz-électricité individuel / actuellement loué // INFO et VISITE SUR RDV.
Type vastgoed Appartement
Prijs 459.000
Aantal slaapkamers 3
Aantal badkamers 1