Te koop Huis

Beschrijving van   

Vergelijk realty's

Te koop Huis

Huis Huis Huis Huis Huis Huis Huis Huis Huis Huis Huis Huis Huis Huis Huis Huis Huis Huis Huis Huis
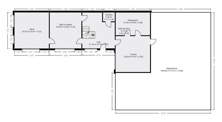
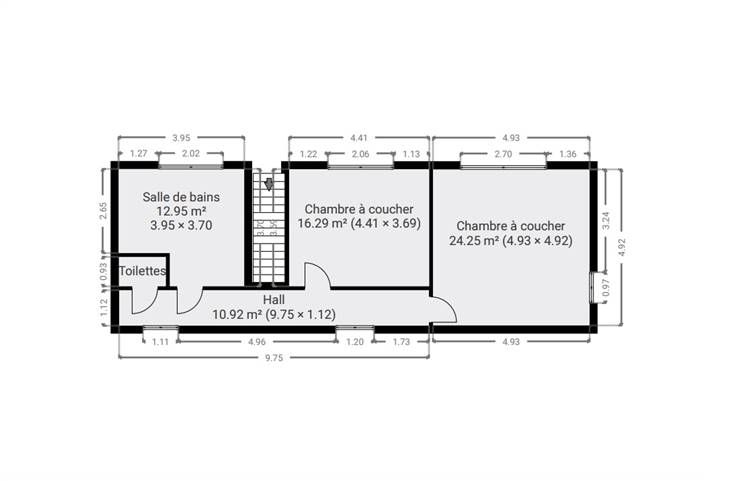
Sorry er is geen nederlandse vertaling beschikbaar. Century 21 iris-concept vous propose une magnifique maison style fermette à vendre à Liberchies. Cette magnifique fermette est située à quelques minutes des axes routiers ainsi que des facilités, la maison est composée au rez-de-chaussée d'un grand hall d'entrée, une grande cuisine, une salle de douche, wc séparé, salle à manger et un grand salon. A l'étage vous trouverez une grande chambre parentale, une salle de bain ainsi qu'une deuxième chambre. La maisons dispose également d'un grand hangar de +/- 150m2, un car-port, une agréable terrasse et grand jardin. Double vitrage en pvc, toiture récente, cave, poêle à pellets. Ne traînez pas à prendre contact avec nous afin d'organiser une visite au 071/96.03.67 ou sur info@century21iris-concept.be
Type vastgoed Huis
Prijs 450.000
Bewoonbare opp. 120
Aantal slaapkamers 2
Aantal badkamers 2