Te huur Gebouw voor gemengd gebruik

Beschrijving van   

Vergelijk realty's

Te huur Gebouw voor gemengd gebruik

Gebouw voor gemengd gebruik Gebouw voor gemengd gebruik Gebouw voor gemengd gebruik Gebouw voor gemengd gebruik Gebouw voor gemengd gebruik Gebouw voor gemengd gebruik Gebouw voor gemengd gebruik Gebouw voor gemengd gebruik Gebouw voor gemengd gebruik Gebouw voor gemengd gebruik Gebouw voor gemengd gebruik
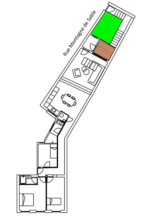
Entre maison et appart, logement 3 chambres atypique situé dans le quartier convivial du Vieux Saint-Anne (vieux-sainte-anne.be/accueil). Idéalement situé, commerces, restaurants, forêt, transports en commun proches. Entrée privative Rue Montagne de Sable (piétonnier) + Entrée commune Ch.de Wavre. Pièces de vie très lumineuses et spacieuses. Entièrement rénové avec des matériaux de qualité, performance énergétique et acoustique. Aucun vis-à-vis. Jardin et autres éléments (portes intérieures, électroménagers,...) en cours de finalisation, mais visitable dès aujourd’hui! Disponible le 1/07/21. Possibilité d'aménager en juin (réduction loyer si jardin pas fini) Grande cave individuelle et hall pour vélos/poussettes (entrée Ch.de Wavre). >> Agences s'abstenir <<
Type vastgoed Huis
Prijs 1.600
Bewoonbare opp. 110
Aantal slaapkamers 3