Te koop Huis

Beschrijving van   

Vergelijk realty's

Te koop Huis

Huis Huis Huis Huis Huis Huis Huis Huis Huis
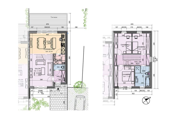
Maison 3 chambres avec jardin un nouveau quartier au cœur de Templeuve. Rez-de-chaussée : hall, WC séparé avec lave-mains, séjour avec cuisine équipée ouverte (7.000 € HTVA), cellier, coin buanderie, place de parking, fondation de terrasse prête et jardin non engazonné Etage : 3 chambres, salle de bain avec baignoire, douche 120 x 90 cm, meuble vasque, miroir et WC. Caractéristiques techniques : châssis PVC gris anthracite double vitrage, seuils en pierre bleue, escalier en rubberwood, chauffage central au gaz de ville, chaudière, radiateurs, VMC simple flux, carrelage au choix avec plinthes assorties pour le rez-de-chaussée et la salle de bain et le hall de nuit à l’étage, revêtement de sol des chambres non compris et citerne de récupération d’eau de pluie de 10.000 litres, pompe non comprise, tuyau Socarex placé PEB visé B Livraison prévue en février 2026 Prix affichés hors frais - Vente sous régime des droits d'enregistrement (12,5%) sur le terrain, éligible à 3 % sous conditions, et de la TVA sur la construction Les surfaces indiquées ne sont pas des surfaces habitables mais des surfaces brutes, selon le code de mesurage appliqué en Belgique Renseignements et visite : Alexandra au +32 472 27 03 42 Publicité à caractère non contractuel et ne constituant pas une offre. Les propriétaires se réservent le droit de décision, d'acceptation ou non sur toute(s) offre(s) soumise(s) pour leur bien
Type vastgoed Huis
Prijs 285.000
Bewoonbare opp. 126
Aantal slaapkamers 3
Aantal badkamers 1