Te koop Burelen

Beschrijving van   

Vergelijk realty's

Te koop Burelen

Burelen Burelen Burelen Burelen Burelen Burelen Burelen Burelen Burelen Burelen Burelen Burelen Burelen Burelen Burelen Burelen Burelen Burelen Burelen Burelen Burelen Burelen Burelen Burelen Burelen Burelen Burelen Burelen Burelen
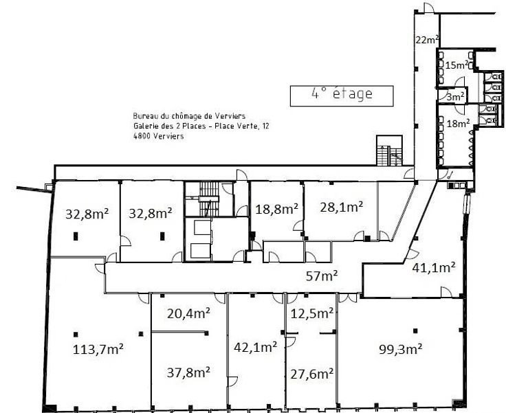
Sorry er is geen nederlandse vertaling beschikbaar. Flech-euro a le plaisir de vous présenter dans le centre de Verviers, au 4eme étage de la galerie des deux places, grand plateau de 622m² entièrement rénové en bureaux. PARTICULARITES; Chauffage collectif au gaz; ascenseur
Type vastgoed Commercieel
Prijs 245.000