Te koop Ideaal gelegen Villa te Humbeek

Beschrijving van   

Vergelijk realty's

Te koop Ideaal gelegen Villa te Humbeek

Ideaal gelegen Villa te Humbeek Ideaal gelegen Villa te Humbeek Ideaal gelegen Villa te Humbeek Ideaal gelegen Villa te Humbeek Ideaal gelegen Villa te Humbeek Ideaal gelegen Villa te Humbeek Ideaal gelegen Villa te Humbeek Ideaal gelegen Villa te Humbeek Ideaal gelegen Villa te Humbeek Ideaal gelegen Villa te Humbeek Ideaal gelegen Villa te Humbeek Ideaal gelegen Villa te Humbeek Ideaal gelegen Villa te Humbeek Ideaal gelegen Villa te Humbeek Ideaal gelegen Villa te Humbeek Ideaal gelegen Villa te Humbeek Ideaal gelegen Villa te Humbeek
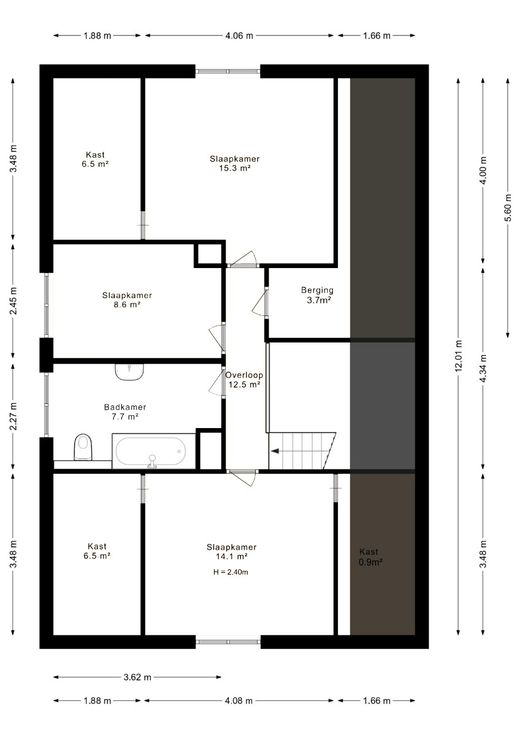
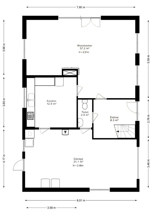
[[ DIT PAND NEEMT DEEL AAN DE ERA OPEN HUIZEN DAG OP 15/3 VAN 9:30 TOT 10:30 ]] Ruime woning op een perceel van 695 m² 3 slaapkamers en lichtrijke leefruimte Gelegen in een gezinsvriendelijke buurt Deze open bebouwing in Humbeek biedt een bewoonbare oppervlakte van 200 m² en heeft een gunstige ligging nabij scholen en openbaar vervoer. In de afgelopen jaren werd het dak en de ramen vernieuwd, is er een condenserende gasketel en een nieuwe voordeur geplaatst. Dankzij de zuidwestelijke oriëntatie geniet je volop van natuurlijk licht.
Type vastgoed Huis
Prijs 485.000
Bewoonbare opp. 200
Aantal slaapkamers 3
Aantal badkamers 1