Te huur Handelszaak

Beschrijving van   

Vergelijk realty's

Te huur Handelszaak

Handelszaak Handelszaak
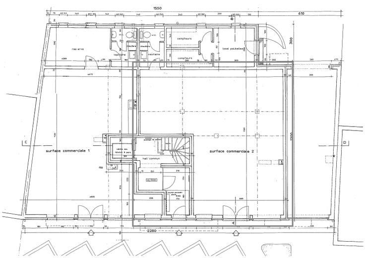
Surface commerciale à louer - Chaussée principale de Chaumont-Gistoux Idéalement située sur la Chaussée principale de Chaumont-Gistoux, cette surface commerciale d'environ 95 m² (surface commerciale 2 sur le plan) bénéficie d'une excellente visibilité et d'un emplacement stratégique, au cœur d'une zone dynamique entourée de nombreux commerces de proximité tels qu'un cash shop, une brasserie, l'Institut NAE, les bureaux de poste, une bijouterie, et bien d'autres. En face, de nombreux autres petits commerces viennent compléter ce quartier commerçant, attirant un flux constant de clients. Le local est disponible à la location au prix de 1 550€ pour une superficie d'environ 95 m². Le local est loué en l'état et comprend : -Arrivée d'eau -Compteur d'électricité -Toilettes et kitchenette Cet emplacement est idéal pour tout type d'activité nécessitant une bonne visibilité et un passage fréquent. N'attendez plus pour installer votre commerce dans un quartier en pleine effervescence ! Pour plus d’informations ou planifier une visite, n’hésitez pas à nous contacter.
Type vastgoed Commercieel
Prijs 1.550
Bewoonbare opp. 95