Te koop Appartement

Beschrijving van   

Vergelijk realty's

Te koop Appartement

Appartement Appartement Appartement Appartement Appartement Appartement Appartement Appartement Appartement Appartement Appartement Appartement Appartement Appartement Appartement Appartement Appartement Appartement
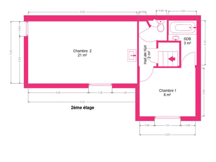
Situé au 1er étage d?une petite copropriété, ce duplex offre un cadre de vie agréable et pratique, à proximité immédiate des commerces, écoles, hôpitaux et axes autoroutiers. Que vous recherchiez un investissement rentable ou un nouveau chez-vous, ce bien saura vous séduire ! Composition du duplex : Rez : Hall d'entrée, séjour lumineux avec espace cuisine, bureau, WC - Étage : Hall de nuit, salle de bain, 2 chambres confortables, WC. - Atouts et commodités : Châssis double vitrage (2x) - Chauffage électrique - PEB C - Copropriété sans ascenseur. Une visite ? Contactez-nous au 081/22.81.00 !
Type vastgoed Appartement
Prijs 139.000
Bewoonbare opp. 83
Aantal slaapkamers 2
Aantal badkamers 1