Te koop Huis

Beschrijving van   

Vergelijk realty's

Te koop Huis

Huis Huis Huis Huis Huis Huis
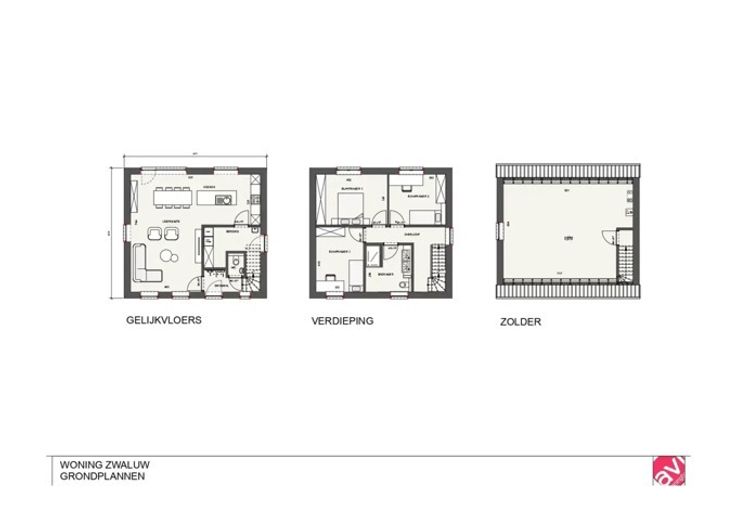
Uitstekend gelegen bouwgrond voor het oprichten van een open bebouwing. (lot 1 + Lot 2 van het verkavelingsplan) Dit perceel kan perfect dienen om een prachtige villawoning op te richten (gelegen in een rustige, verkeersluwe zijstraat van de lostraat) De ligging is fantastisch, op 10 min van het Research park Haasrode en op 7 km van Leuven station. Toch kan je genieten van de voordelen van landelijk wonen (rust, natuur, wandel -en fietsroutes, ...) Uitstekende mobiliteit: er is een bushalte vlakbij met meerdere bussen/uur naar Leuven. Bakker, beenhouwer & apotheker op 300m (en meerdere supermarkten op minder dan 5 km). Er is een lagere school op wandelafstand met voor- en naschoolse kinderopvang en crèche. Geen risico voor overstromingen, de percelen worden nog allemaal bouwrijp gemaakt! De voorgestelde klassieke woning heeft een oppervlakte van 148m2 + 54m2 zolder. Er is een eet- en zithoek voorzien en een keuken met berging. Boven zijn er 3 slaapkamers en een badkamer met douche. Vaste trap naar zolder is voorzien waar extra kamers nog mogelijk zijn. Warmtepomp, vloerverwarming, zonnepanelen, ventilatie D+ zijn reeds voorzien. Alle keuzes i.v.m. de afwerking van de woning zijn naar wens bespreekbaar. Ook het ontwerp van de woning is slechts een voorstel en kan volledig met jou op maat uitgewerkt worden. Vanaf casco afwerking biedt de woning je alvast alle zekerheden en garanties en van daaruit kan je zorgeloos verder afwerken. Een volledig afgewerkte woning is natuu
Type vastgoed Huis
Prijs 610.000
Bewoonbare opp. 202
Aantal slaapkamers 3
Aantal badkamers 1