Te koop Huis

Beschrijving van   

Vergelijk realty's

Te koop Huis

Huis Huis Huis Huis Huis Huis Huis Huis Huis Huis Huis Huis Huis Huis Huis Huis Huis Huis Huis Huis Huis Huis Huis Huis Huis Huis
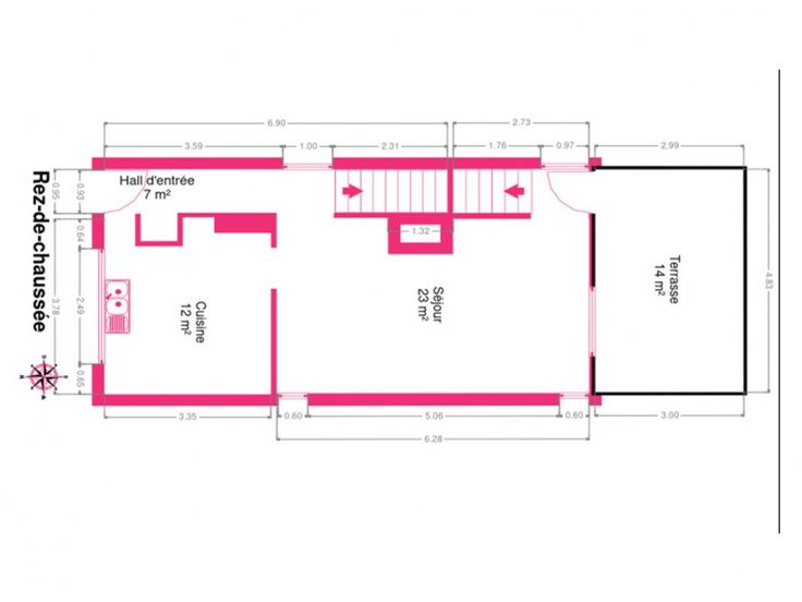
Située dans le village de Bioul, cette maison plaira aux amateurs de projets personnalisés souhaitant finaliser une maison à leur image, tout en bénéficiant d'une base saine et écologique. Des finitions sont encore nécessaires pour parfaire l'intérieur - un projet d'agrandissement avait été octroyé en 2011, offrant aux propriétaires la possibilité d'étendre l'espace habitable selon leurs besoins et envies. Composition : au Rez d'un hall, d'une cuisine ouverte sur une pièce de vie - à l'étage : un WC, une salle de bain, une chambre - au 2ème : une chambre - au SSol : un WC et une cave. Châssis TV (bois int et alu ex) et DV - Chauff : poêle pellet - VMC DFlux passif avec récup chaleur - CEP 10.000L - PEB C - Prix : 220.000 euros. Pour plus d'informations ou pour organiser une visite, veuillez contacter le 081/22.81.00
Type vastgoed Huis
Prijs 220.000
Bewoonbare opp. 103
Aantal slaapkamers 2
Aantal badkamers 1