Te koop Nieuwbouw magazijn te koop in LEMBEEK BUSI...

Beschrijving van   

Vergelijk realty's

Te koop Nieuwbouw magazijn te koop in LEMBEEK BUSINESS PARK

Nieuwbouw magazijn te koop in LEMBEEK BUSINESS PARK Nieuwbouw magazijn te koop in LEMBEEK BUSINESS PARK Nieuwbouw magazijn te koop in LEMBEEK BUSINESS PARK Nieuwbouw magazijn te koop in LEMBEEK BUSINESS PARK Nieuwbouw magazijn te koop in LEMBEEK BUSINESS PARK Nieuwbouw magazijn te koop in LEMBEEK BUSINESS PARK
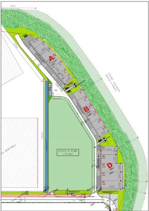
Deze moderne KMO-units, variërend van 130 m² tot 360 m² (samenvoegbaar), maken deel uit van een nieuw bedrijvenpark. Strategisch gelegen ten zuiden van Brussel/Halle en ten noorden van Saintes/Tubize, met uitstekende bereikbaarheid via de E429 en de Ring van Brussel. De casco magazijnen hebben een vrije hoogte van 6 meter en zijn gebouwd met een solide staalstructuur, betonnen wanden (3 m hoog) en geïsoleerde sandwichpanelen. Elke unit is toegankelijk via een automatische sectionale poort (4 m breed x 4 m hoog) met aparte toegangsdeur. Daarnaast zijn de magazijnen uitgerust met een duurzame polybetonvloer, een lichtstraat met rookluik, branddetectie en individuele aansluitingen voor water, elektriciteit (32 A) en data. Elke unit beschikt over een regenwaterput van 5.000 L. De dakstructuur is geschikt voor zonnepanelen (15 kg/m²) en technische installaties (5 kg/m²). Oplevering voorzien in juni 2025. Ideaal voor opslag en productie – een uitstekende opportuniteit voor ondernemers die op zoek zijn naar een kwalitatieve en strategisch gelegen bedrijfsruimte. verkoopprijzen excl. BTW, parkings en nutsen: VERPLICHT • 1 parking incl. wachtbuis: €7000/parking/excl. BTW • aansluiting nutsvoorzieningen: €12500 excl. BTW • branddetectie: €2800 excl. BTW OPTIONEEL • extra parking excl. wachtbuis: €6000/parking/excl. BTW Meer info, aarzel niet ons te contacteren: GSM: 0479 49 55 88 Mail: info@kupa.immo
Type vastgoed Commercieel
Prijs 288.000
Bewoonbare opp. 180