Te huur Kantoren

Beschrijving van   

Vergelijk realty's

Te huur Kantoren

Kantoren Kantoren Kantoren Kantoren Kantoren Kantoren Kantoren Kantoren Kantoren Kantoren
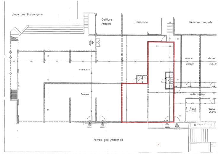
A deux pas de la Place des Wallons, surface de bureau à louer de 115 m². Espace actuellement ouvert offrant une flexibilité d’aménagement, kitchenette, deux wc avec lavabos. Fraichement rénovée : châssis, peinture, éclairage, sol à définir selon les préférences . Nombreuses possibilités.
Type vastgoed Commercieel
Prijs 1.250
Bewoonbare opp. 115