Te koop Burelen

Beschrijving van   

Vergelijk realty's

Te koop Burelen

Burelen Burelen Burelen Burelen Burelen Burelen Burelen Burelen Burelen Burelen Burelen Burelen Burelen Burelen Burelen Burelen Burelen Burelen Burelen
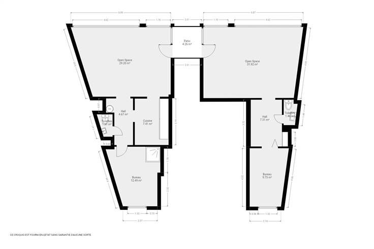
Sorry er is geen nederlandse vertaling beschikbaar. Un descriptif très complet avec documents téléchargeables est visible sur www.pierremarlair.be. Visite pendant les heures d’ouverture du bureau, sur RDV uniquement en appelant le 081.840.840. Vous recherchez un espace fonctionnel et bien situé pour votre activité professionnelle ou commerciale ? Découvrez ces deux locaux de ± 60 m² et ± 55 m², parfaits pour des bureaux, professions libérales ou commerces. Le local de ± 60 m² est proposé à 130.000 EUR, tandis que celui de ± 55 m² est à 110.000 EUR. Il est possible d’acquérir l’ensemble ou uniquement le local de 60 m², la vente du local de 55 m² étant conditionnée à celle du plus grand espace. Idéalement situés au rez-de-chaussée d’une copropriété impeccable, parfaitement entretenue et gérée, ces espaces bénéficient d’une excellente visibilité et d’une belle luminosité grâce à leurs grandes vitrines. L’aménagement intérieur peut être repensé selon vos besoins, offrant une flexibilité totale pour adapter les lieux à votre activité. Une opportunité rare pour implanter votre entreprise dans un environnement professionnel de qualité. Contactez-nous dès maintenant pour organiser une visite et découvrir tout le potentiel de ces espaces.
Type vastgoed Commercieel
Prijs 240.000