Te koop Huis

Beschrijving van   

Vergelijk realty's

Te koop Huis

Huis Huis Huis Huis Huis Huis Huis Huis Huis Huis Huis Huis Huis Huis Huis Huis Huis Huis Huis Huis Huis
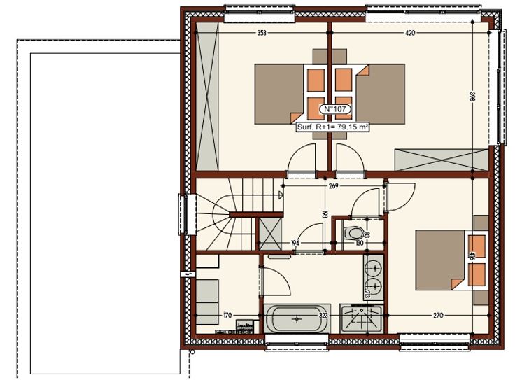
Situé à Flémalle, à côté du Val Saint Lambert, dans un environnement préservé au coeur de la nature, nous vous proposons une maison neuve (2025), première occupation, clé sur porte. Le bien se compose de: 3CH, Bureau, Séjour-Salle à manger, Cuisine full-équipée, Salle de bain avec douche et wc, Buanderie, WC séparé, Garage, Terrasse, Jardin. Electros Siemens, Triple vitrage, Chaudière à condensation au gaz, VMC double flux, Compteurs individuels. Rue de Villencourt 1 à 4400 Flémalle. Permanence de visite les samedis de 14h à 17h30 ou en semaine sur RDV. Infos et Contact: 0497/600215 ou info@conceptconfort.be
Type vastgoed Huis
Prijs 450.000
Bewoonbare opp. 155
Aantal slaapkamers 3
Aantal badkamers 1