Te koop Huis

Beschrijving van   

Vergelijk realty's

Te koop Huis

Huis Huis Huis Huis Huis Huis Huis Huis
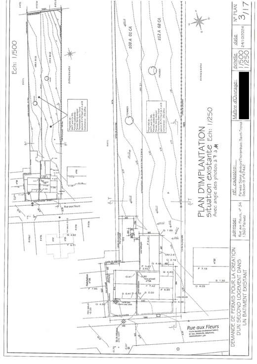
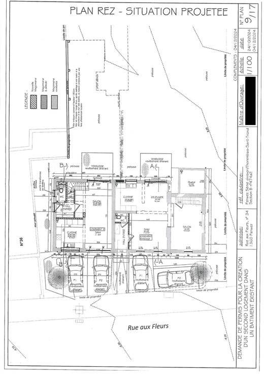
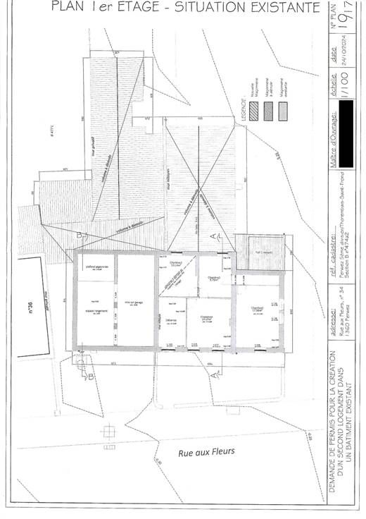
Op zoek naar een renovatieproject? Deze schuur, het resultaat van de splitsing van een huis, moet volledig gerenoveerd worden. Er is al een bouwvergunning met plannen afgegeven voor de verbouwing tot woonhuis dat volgens de plannen bestaat uit een inkomhal, een zitkamer, een eetkamer en een keuken op de begane grond. Boven is een nachthal, 2 slaapkamers en een doucheruimte, allemaal met een tuin op het zuiden. De woning moet volledig gerenoveerd worden en biedt veel potentieel voor een project op maat. Prijs: €105,000, meer informatie op 010/87.20.87.
Type vastgoed Huis
Prijs 105.000
Bewoonbare opp. 80
Aantal slaapkamers 2
Aantal badkamers 1