Te koop Huis

Beschrijving van   

Vergelijk realty's

Te koop Huis

Huis Huis Huis Huis Huis Huis Huis Huis Huis Huis Huis Huis Huis Huis
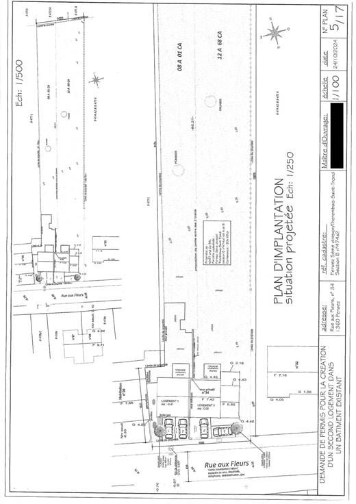
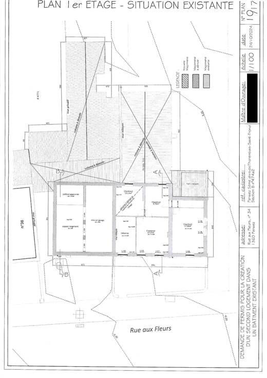
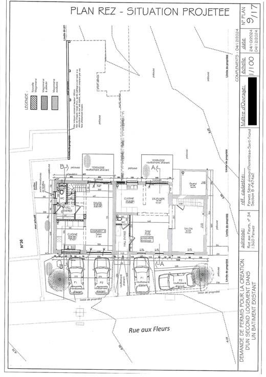
Dit huis is het resultaat van de splitsing van een gebouw in tweeën en heeft een complete opknapbeurt nodig. Er is al een bouwvergunning met plannen afgegeven om het om te bouwen tot een woning met, volgens de plannen, een inkomhal, een zitkamer, een eetkamer, een keuken en een bijkeuken op de begane grond. Boven is een nachthal, 3 slaapkamers, een kleedkamer en een doucheruimte, allemaal met een tuin op het zuiden. Dit huis biedt veel potentieel voor een project op maat. Prijs: € 195.000, meer informatie op 010/87.20.87.
Type vastgoed Huis
Prijs 195.000
Bewoonbare opp. 122
Aantal slaapkamers 3
Aantal badkamers 1