Te huur Handelszaak

Beschrijving van   

Vergelijk realty's

Te huur Handelszaak

Handelszaak Handelszaak
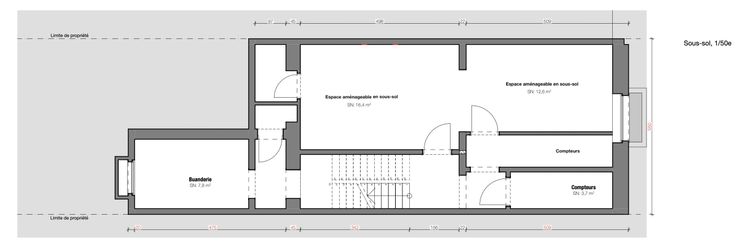
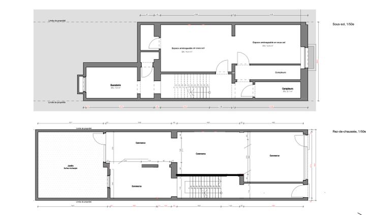
📍 Adresse : Rue Théodore Verhaegen 89, 1060 Saint-Gilles 📏 Superficie totale : +-110 m2 🌿 Extérieur : Jardin de 10,55 m² Situé en plein cœur de Saint-Gilles, cet espace polyvalent offre une belle visibilité et de nombreuses possibilités d’aménagement pour un commerce, un bureau ou une profession libérale. Caractéristiques : ✅ Espace lumineux de 65 m² au rez-de-chaussée ✅ Sous-sol aménageable de 46 m², idéal pour stockage ou bureau supplémentaire ✅ Petit jardin privatif/ cours arrière de 10,55 m², un vrai plus en ville ✅ Travaux à prévoir : possibilité de négocier une période de gratuité pour leur réalisation ou de trouver un autre arrangement ✅ Emplacement stratégique dans un quartier dynamique et commerçant ✅ Proximité des transports en commun et des commodités 💰 Loyer : 1490 EUR 📞 Contact : +32 492 46 95 86 Ne manquez pas cette opportunité ! Visites sur rendez-vous.
Type vastgoed Commercieel
Prijs 1.490
Bewoonbare opp. 110