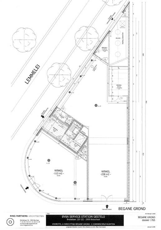
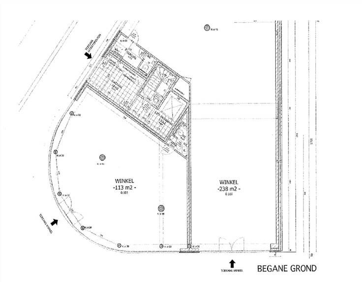
Uitstekend gelegen handelsruimte van 351m² te huur gelegen in de winkelstraat van Brasschaat: Bredabaan 120.
Enseignes in de directe omgeving: 2 Soeurs, Mirlo, Zebra Fashion, Prinsen & Prinsessen, KBC Bank, Lucy Chang, Mitjes Place, enz.
EPC-NR: label 'C'