Te koop Moderne studio

Beschrijving van   

Vergelijk realty's

Te koop Moderne studio

Moderne studio Moderne studio Moderne studio Moderne studio Moderne studio Moderne studio Moderne studio Moderne studio Moderne studio Moderne studio Moderne studio Moderne studio Moderne studio Moderne studio Moderne studio Moderne studio Moderne studio Moderne studio Moderne studio Moderne studio Moderne studio Moderne studio Moderne studio Moderne studio Moderne studio Moderne studio
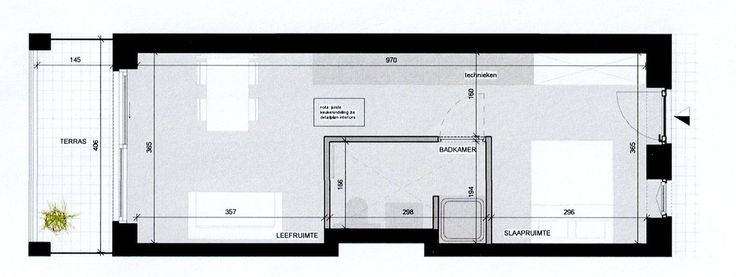
Op zoek naar een gezellig stekje? Dan ben je hier aan het juiste adres! De studio omvat een knusse zithoek met plaats voor een kleine eettafel, een uitgeruste keuken, badkamer met douche - toilet en lavabo, en een slaapvertek. Je kan ook gezellig buiten zitten op het terras. De aparte berging is inbegrepen in de prijs. De ondergrondse staanplaats is mogelijks mee bij aan te kopen voor €25 000. Dit is geen verplichting. Door de extra faciliteiten in het gebouw is er een (h)echte community. Als je hiervan wil deel uitmaken dan is er de gemeenschappelijke leefruimte voorzien van bar, zithoek, pingpong, tafelvoetbal, pool,... In de fitnesszaal staan de nieuwste apparaten om te gebruiken. De gemeenschappelijke grote keuken kan gereserveerd worden zodat als je een feestje geeft, dit gemakkelijk daar kan! Grote fietsenstalling aanwezig. Alle woonunits zijn rondom een mooi, groen binnenplein gelegen. De ideale uitvalsbasis naar stad Antwerpen met openbaar vervoer en dichtbij oprit E17! Nieuwsgierig? Maak dan een afspraak met Sofie via Sofie@s3e-immo.com of 0478/66 91 39
Type vastgoed Appartement
Prijs 195.000
Bewoonbare opp. 44
Aantal badkamers 1