Te huur Instapklare, creative office space

Beschrijving van   

Vergelijk realty's

Te huur Instapklare, creative office space

Instapklare, creative office space Instapklare, creative office space Instapklare, creative office space Instapklare, creative office space Instapklare, creative office space Instapklare, creative office space Instapklare, creative office space Instapklare, creative office space Instapklare, creative office space Instapklare, creative office space Instapklare, creative office space
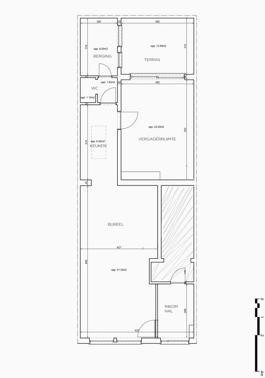
Lichtrijk, gelijkvloers kantoor van 88m2 voor creatief bedrijf, bestaande uit: bureelruimte, vergaderruimte met terras, keukentje, toilet en berging. Sobere afwerking met enigszins ruwe elementen, uitkijk op een parkje. Het kantoor is gelegen op wandelafstand van dampoort station en gent centrum. Er is parkeermogelijkheid in de straat.
Type vastgoed Commercieel
Prijs 985
Bewoonbare opp. 88