Te koop Bouwgrond

Beschrijving van   

Vergelijk realty's

Te koop Bouwgrond

Bouwgrond Bouwgrond Bouwgrond
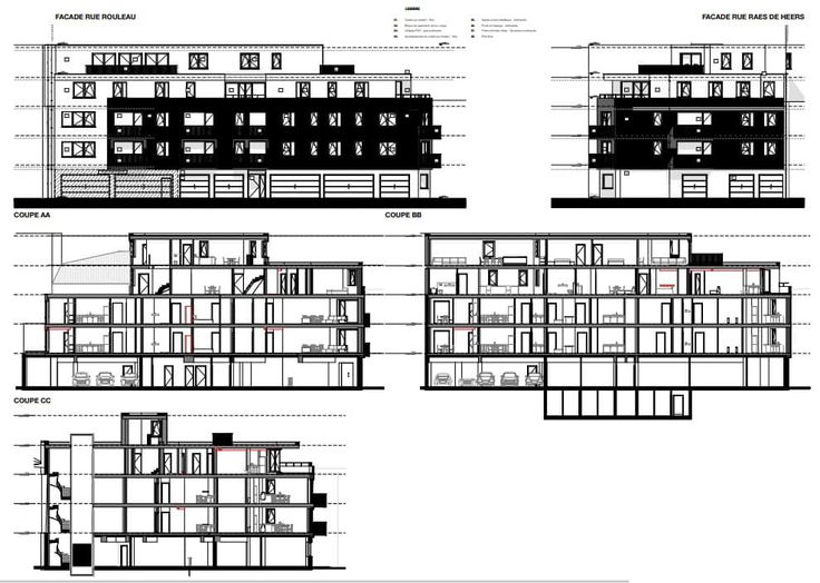
à vendre projet immobilier avec permis pour la construction de 16 appartements à 1,4 km de la place de la république française et 1km de la galerie Mediacité. Avec emplacements pour voitures, motos et vélos.
Type vastgoed Grond
Prijs 640.000