Te koop Studio

Beschrijving van   

Vergelijk realty's

Te koop Studio

Studio Studio Studio Studio Studio Studio Studio Studio Studio Studio Studio Studio Studio Studio Studio Studio Studio
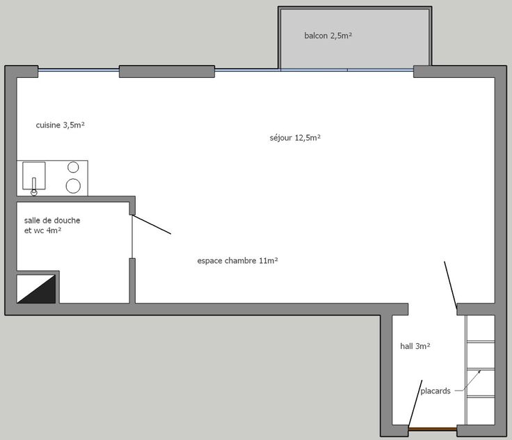
Beau studio à vendre situé dans la résidence pour séniors « Le Vert Galant » à Gembloux, proche de la gare, des commerces et du centre-ville. Accès aisé depuis Namur, Bruxelles et Charleroi. Le studio se situe au second étage avec ascenseur. Il se compose d’un hall d’entrée avec parlophone et placards, d’une grande pièce de vie avec une cuisine ouverte et d’une salle d’eau avec WC, lavabo et cabine de douche adaptée. L’atout majeur, un balcon avec vue dégagée sur le quartier. Le studio est en bon état, les châssis sont récents et, le revêtement de sol aussi. La résidence propose une permanence 24h/24h et dispose de plusieurs salles communes, un grand restaurant et de nombreux parkings. Idéal pour une personne âgée souhaitant vivre au calme et en sécurité tout en gardant son indépendance sans devoir posséder de voiture. Services aux résidents en option (garde 24h/24h, repas à prix coûtant, aide à la vie pratique,…). Le studio intéressera également les investisseurs car il est actuellement loué (380€/mois). Prix : 64.000 euros. PEB C : Espec : 207 kWh/m².an/ Etotale : 7571kWh/an / N°20230220010812. Pour plus d'infos et consulter les plans, rdv sur www.lartisandelimmobilier.be ou téléphonez au 0475/871.841.
Type vastgoed Appartement
Prijs 64.000
Bewoonbare opp. 34