Te koop Recent gerenoveerd huis op centrale locatie

Beschrijving van   

Vergelijk realty's

Te koop Recent gerenoveerd huis op centrale locatie

Recent gerenoveerd huis op centrale locatie Recent gerenoveerd huis op centrale locatie Recent gerenoveerd huis op centrale locatie Recent gerenoveerd huis op centrale locatie Recent gerenoveerd huis op centrale locatie Recent gerenoveerd huis op centrale locatie Recent gerenoveerd huis op centrale locatie Recent gerenoveerd huis op centrale locatie Recent gerenoveerd huis op centrale locatie Recent gerenoveerd huis op centrale locatie Recent gerenoveerd huis op centrale locatie Recent gerenoveerd huis op centrale locatie Recent gerenoveerd huis op centrale locatie Recent gerenoveerd huis op centrale locatie Recent gerenoveerd huis op centrale locatie Recent gerenoveerd huis op centrale locatie Recent gerenoveerd huis op centrale locatie
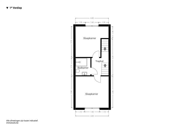
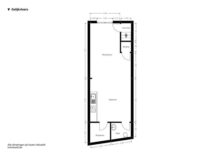
In een rustige eenrichtingsstraat vind je op nummer 67 dit fijne huis. Via de betegelde inkomhal stap je de leefruimte binnen, die een tijdloze lichtgrijze laminaatparket heeft die in het hele huis terugkomt. Vooraan heb je plaats voor een zithoek, en naast de open leefkeuken kan je een grote eettafel kwijt. Die keuken is volledig geïnstalleerd en heeft een composiet werkblad met houtlook dat mooi matcht met de witte frontjes en de zwarte handvaten. Je hebt hier een inductieplaat, dampkap, spoelbak, oven en heel wat kastruimte. Achteraan heb je ook nog een apart toilet met lavabo en een technische ruimte die ook als wasplaats fungeert. Handig: onder de trap zit er nog extra bergruimte slim weggewerkt. Op de eerste verdieping bevinden zich twee ruime slaapkamers, met de badkamer in het midden. Die badkamer heeft een XL-wandtegel met marmereffect, een strakke zwarte inloopdouche, grote lavabo met onderkast, spiegel met verlichting en een hangtoilet. Op de tweede en de bovenste verdieping heb je nog een zeer ruime slaapkamer in de nok van het dak. In deze rustige eenrichtingsstraat met veel jonge gezinnen is het fijn wonen, en van hieruit ben je ook zo in het centrum van Sint-Niklaas. Zowel het station als bussen zijn op wandelafstand, net als een Colruyt. Ook voor wat groen hoef je hier niet ver: het Romain De Vidtspark ligt op 3,3 km van je deur. Meer info: https://www.immovasta.be/panden/gegevens/13962/
Type vastgoed Huis
Prijs 259.000
Bewoonbare opp. 122
Aantal slaapkamers 3
Aantal badkamers 1