Te koop NIEUW TE BOUWEN HALF-OPEN-BEBOUWING AAN EE...

Beschrijving van   

Vergelijk realty's

Te koop NIEUW TE BOUWEN HALF-OPEN-BEBOUWING AAN EEN NIEUW AANGELE...

NIEUW TE BOUWEN HALF-OPEN-BEBOUWING AAN EEN NIEUW AANGELE... NIEUW TE BOUWEN HALF-OPEN-BEBOUWING AAN EEN NIEUW AANGELE... NIEUW TE BOUWEN HALF-OPEN-BEBOUWING AAN EEN NIEUW AANGELE... NIEUW TE BOUWEN HALF-OPEN-BEBOUWING AAN EEN NIEUW AANGELE... NIEUW TE BOUWEN HALF-OPEN-BEBOUWING AAN EEN NIEUW AANGELE...
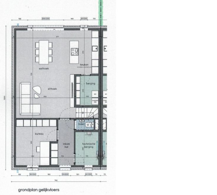
NIEUW TE BOUWEN HALF OPEN BEBOUWING gelegen in een doodlopend straatje van een nieuw woonerf Marie Salkinplantsoen (achter Leuvensesteenweg 175) centrum Kortenberg, woningen zijn reeds in ruwbouw !!!  INSTAPKLAAR ,  heel ruime woning van 7,42 op 12 meter,  inclusief keuken en badkamer met ligbad en douche. Private autostaanplaats voorzien met mogelijkheid tot extra parking.   VOLLEDIG TRADITIONELE BOUW volgens de strengste regels van de kunst, super geïsoleerd - zonnepanelen inbegrepen, 1.0 GLAS, WARMTEPOMP, VLOERVERWARMING, BEN-WONING;  WONING MET  4 SLAAPKAMERS  - afzonderlijk bureau op gelijkvloers, twee bergingen,  west gelegen tuin (alles inbegrepen inclusief notaris, registratie, architect, BTW, coördinatie, grond,...komt deze woning op 603.992€ - alles inbegrepen en afgewerkt ).  Ruwbouw is reeds klaar. GEEN GEMEENSCHAPPELIJKE KOSTEN volledige privéwoning.  Rechtstreeks van bouwfirma Voor alle info : Bart - Abric 016/52.58.00 Renovatieplicht: onbekend
Type vastgoed Huis
Prijs 510.000
Bewoonbare opp. 178
Aantal slaapkamers 4
Aantal badkamers 1