Te koop Appartement

Beschrijving van   

Vergelijk realty's

Te koop Appartement

Appartement Appartement Appartement Appartement Appartement Appartement Appartement Appartement Appartement Appartement Appartement Appartement Appartement Appartement Appartement Appartement
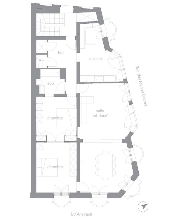
Situation: Au coin entre Rue des Riches Claires et le piétonnier, à deux pas de la Grande Place et les Halles St-Géry, l’appartement est entouré de toute sorte de services (cinémas, restaurants, magasins, supermarchés, écoles etc.) et connecté avec toute la ville (pré-métro Bourse et parking-vélos, bus, métro De Brouckère, Gare Centrale, car-sharing ou garages). Tous les avantages du centre-ville sans être sur la foule. Description : Très lumineux, l’appartement est sis au 2éme étage d’une petite copropriété (ascenseur, cave en commun et adoucisseur d’eau). Le bâtiment du 1875 a été entièrement rénové en 2008-2015 (parquet, installations, double-vitrage, toiture etc.) alors que l’appartement a été encore amélioré en 2021 (porte blindée, chaudière à condensation, portes, bow-window triple-vitrage, chambres insonorisés, espace de stockage, carrelage etc.). Avec une superficie de +/- 130 m2 (plus 5 balcons), l’appartement préserve tout son charme « art-déco » sans renoncer au confort (PEB D). Comprenant : Entrée; toilette avec lavabo et WC; vestiaire; cuisine-salle à manger avec balcon; couloir et accès à l’espace de stockage; salle de bains avec baignoire et WC; salon double avec bow-window triple-vitrage, 3 balcons, cheminée et décorations « art-déco »; 2 chambres communicantes, avec balcon, double-fenêtre, murs/plafonds insonorisés. Possibilité de transformer la cuisine en troisième chambre (en créant une cuisine américaine dans le salon). Vente entre particuliers.
Type vastgoed Appartement
Prijs 465.000
Bewoonbare opp. 130
Aantal slaapkamers 2
Aantal badkamers 1