Te koop NIEUW TE BOUWEN TUSSENWONING AAN EEN NIEUW...

Beschrijving van   

Vergelijk realty's

Te koop NIEUW TE BOUWEN TUSSENWONING AAN EEN NIEUW AANGELEGD ACHT...

NIEUW TE BOUWEN TUSSENWONING AAN EEN NIEUW AANGELEGD ACHT... NIEUW TE BOUWEN TUSSENWONING AAN EEN NIEUW AANGELEGD ACHT... NIEUW TE BOUWEN TUSSENWONING AAN EEN NIEUW AANGELEGD ACHT... NIEUW TE BOUWEN TUSSENWONING AAN EEN NIEUW AANGELEGD ACHT... NIEUW TE BOUWEN TUSSENWONING AAN EEN NIEUW AANGELEGD ACHT... NIEUW TE BOUWEN TUSSENWONING AAN EEN NIEUW AANGELEGD ACHT...
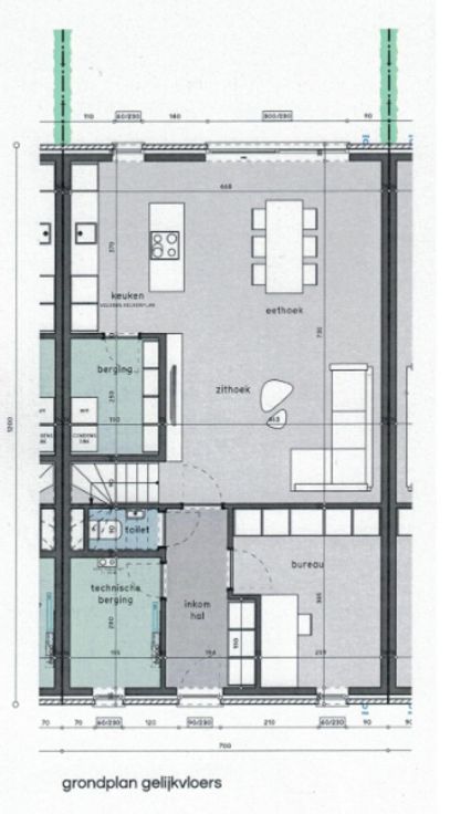
NIEUW TE BOUWEN  TUSSENWONING gelegen in een doodlopend straatje van een nieuw woonerf Marie Salkinplantsoen (achter Leuvensesteenweg 175) centrum Kortenberg, woningen zijn reeds in ruwbouw !!!  INSTAPKLAAR ,  ruime woning van 7 op 12 meter,  inclusief keuken en badkamer met ligbad en douche. Private autostaanplaats voorzien met mogelijkheid tot extra parking.   VOLLEDIG TRADITIONELE BOUW volgens de strengste regels van de kunst, super geïsoleerd - zonnepanelen inbegrepen, 1.0 GLAS, WARMTEPOMP, VLOERVERWARMING, BEN-WONING;  WONING MET  4 SLAAPKAMERS  - afzonderlijk bureau op gelijkvloers, twee bergingen, zuider tuin (alles inbegrepen inclusief notaris, registratie, architect, BTW, coördinatie, grond,...komt deze woning op 520.872€ - alles inbegrepen en afgewerkt ).  Ruwbouw is reeds klaar. GEEN GEMEENSCHAPPELIJKE KOSTEN volledige privéwoning.  Rechtstreeks van bouwfirma Voor alle info : Bart - Abric 016/52.58.00 Renovatieplicht: onbekend
Type vastgoed Huis
Prijs 439.000
Bewoonbare opp. 168
Aantal slaapkamers 4
Aantal badkamers 1