Te koop NIEUW TE BOUWEN TUSSENWONING MET TWEE VERD...

Beschrijving van   

Vergelijk realty's

Te koop NIEUW TE BOUWEN TUSSENWONING MET TWEE VERDIEPINGEN AAN EE...

NIEUW TE BOUWEN TUSSENWONING MET TWEE VERDIEPINGEN AAN EE... NIEUW TE BOUWEN TUSSENWONING MET TWEE VERDIEPINGEN AAN EE... NIEUW TE BOUWEN TUSSENWONING MET TWEE VERDIEPINGEN AAN EE... NIEUW TE BOUWEN TUSSENWONING MET TWEE VERDIEPINGEN AAN EE... NIEUW TE BOUWEN TUSSENWONING MET TWEE VERDIEPINGEN AAN EE... NIEUW TE BOUWEN TUSSENWONING MET TWEE VERDIEPINGEN AAN EE...
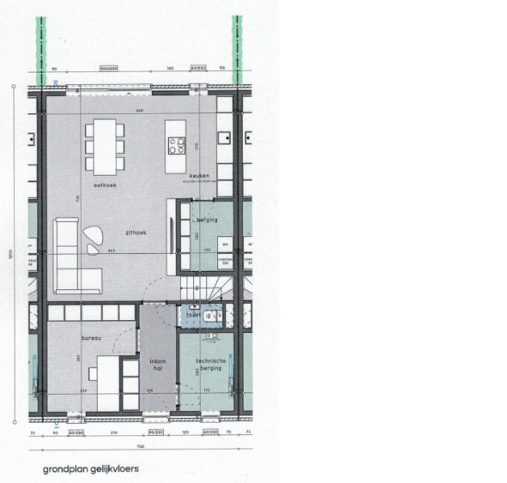
NIEUW TE BOUWEN  TUSSENWONING MET EXTRA ZOLDERVERDIEPING gelegen in een doodlopend straatje van een nieuw woonerf Marie Salkinplantsoen (achter Leuvensesteenweg 175) centrum Kortenberg, woningen zijn reeds in ruwbouw !!!  INSTAPKLAAR ,  ruime woning van 7 op 12 meter,  inclusief keuken en badkamer met ligbad en douche. Private autostaanplaats voorzien met mogelijkheid tot extra parking.   VOLLEDIG TRADITIONELE BOUW volgens de strengste regels van de kunst, super geïsoleerd - zonnepanelen inbegrepen, 1.0 GLAS, WARMTEPOMP, VLOERVERWARMING, BEN-WONING;  WONING MET  4 SLAAPKAMERS EN NOG EXTRA VERDIEPING - afzonderlijk bureau op gelijkvloers, twee bergingen, zuidertuin (alles inbegrepen inclusief notaris, registratie, architect, BTW, coördinatie, grond,...komt deze woning op 581.372€ - alles inbegrepen en afgewerkt ).  Ruwbouw is reeds klaar. GEEN GEMEENSCHAPPELIJKE KOSTEN volledige privéwoning.  Rechtstreeks van bouwfirma Voor alle info : Bart - Abric 016/52.58.00 Renovatieplicht: onbekend
Type vastgoed Huis
Prijs 489.000
Bewoonbare opp. 211
Aantal slaapkamers 4
Aantal badkamers 1