Te koop Huis

Beschrijving van   

Vergelijk realty's

Te koop Huis

Huis Huis Huis Huis Huis Huis Huis Huis Huis Huis Huis Huis Huis Huis Huis Huis Huis Huis Huis
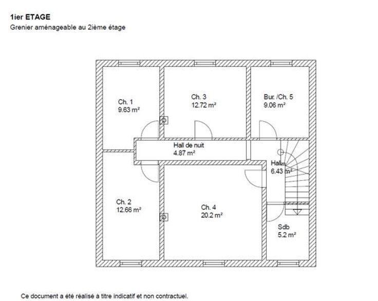
Idéalement située en plein centre de Beauraing, cette maison offre un cadre de vie agréable à proximité immédiate de toutes les commodités (commerces, écoles, transports,…). Avec plus de 160m² habitables, cette habitation séduit par ses beaux volumes et son potentiel d’aménagement grâce à des combles exploitables. À l’extérieur, profitez d’un grand jardin orienté Ouest, parfait pour des moments de détente ensoleillés. Une partie du terrain est constructible, offrant de nombreuses possibilités (extension, projet d’annexe…). Une opportunité rare à ne pas manquer ! Faire offre à partir de 235.000€ Cette annonce ne constitue pas une offre, mais seulement un appel à négociation lancé aux candidats acquéreurs. COMPOSITION : Sous-sol : Une cave. Rez-de-chaussée : Hall d’entrée, séjour, cuisine, garage – chaufferie et WC. 1ier Etage : Hall de nuit, 4 chambres, un bureau (ou petite ch.), et salle de bains. 2ième Etage : Grand grenier aménageable. Extérieur : Différentes remises et jardin (en zone d’habitat – constructible).
Type vastgoed Huis
Prijs 235.000
Bewoonbare opp. 168
Aantal slaapkamers 4
Aantal badkamers 1