Te huur Gezellig, vernieuwd startersappartement in...

Beschrijving van   

Vergelijk realty's

Te huur Gezellig, vernieuwd startersappartement in Pulhof!

Gezellig, vernieuwd startersappartement in Pulhof! Gezellig, vernieuwd startersappartement in Pulhof! Gezellig, vernieuwd startersappartement in Pulhof! Gezellig, vernieuwd startersappartement in Pulhof! Gezellig, vernieuwd startersappartement in Pulhof! Gezellig, vernieuwd startersappartement in Pulhof!
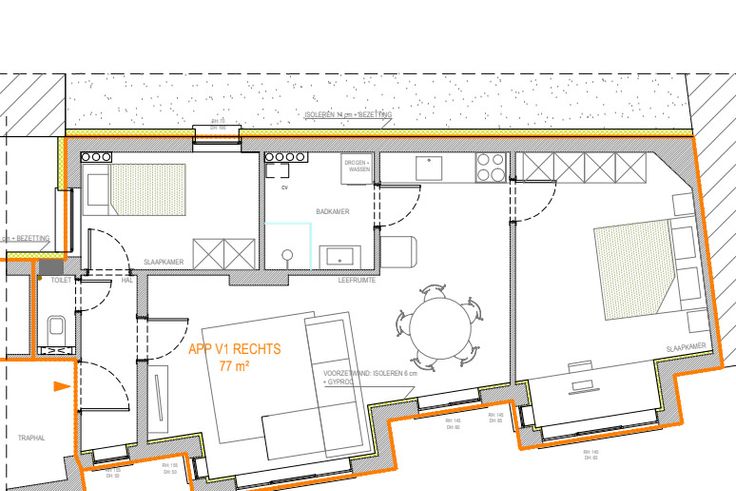
In het charmante Pulhof bevindt zich dit startersappartement op de eerste verdieping. Het combineert authenticiteit met hedendaags wooncomfort en is onmiddellijk beschikbaar! 🏑 Indeling: Het appartement is bereikbaar via de trap. Achter de voordeur leidt een gang naar een apart toilet en een knusse tweede slaapkamer. De lichtrijke leefruimte met open keuken vormt het hart van het appartement en biedt toegang tot de ruime hoofdslaapkamer, waar voldoende plaats is voor een groot bed, een kledingkast Γ©n een bureau. De badkamer beschikt over een douche, lavabo en aansluiting voor een wasmachine. Extra opbergruimte? Die vind je in de privΓ© kelderberging. 🌟 Troeven: βœ… Onmiddellijk beschikbaar βœ… Grote ramen die zorgen voor veel natuurlijk licht βœ… Hennepmuurisolatie & driedubbele beglazing voor optimaal wooncomfort βœ… Volledig vernieuwd met respect voor de authentieke jaren ’30-elementen βœ… Mobiscore 9,3/10 – uitstekende mobiliteit & voorzieningen πŸš† Perfecte locatie & bereikbaarheid: Tramhalte aan de deur met vlotte verbinding naar Antwerpen-centrum en Mortsel Supermarkt & restaurants op wandelafstand Ideale ligging voor automobilisten: vlotte toegang tot A12, E19 en Antwerpse Ring πŸ“© Interesse? Contacteer ons voor meer info of een bezichtiging!
Type vastgoed Appartement
Prijs 985
Bewoonbare opp. 77 mΒ²
Aantal slaapkamers 2
Aantal badkamers 1