Te koop handelspand met woonst

Beschrijving van   

Vergelijk realty's

Te koop handelspand met woonst

handelspand met woonst handelspand met woonst handelspand met woonst handelspand met woonst handelspand met woonst handelspand met woonst handelspand met woonst handelspand met woonst handelspand met woonst handelspand met woonst handelspand met woonst handelspand met woonst handelspand met woonst handelspand met woonst handelspand met woonst handelspand met woonst handelspand met woonst handelspand met woonst handelspand met woonst handelspand met woonst handelspand met woonst handelspand met woonst
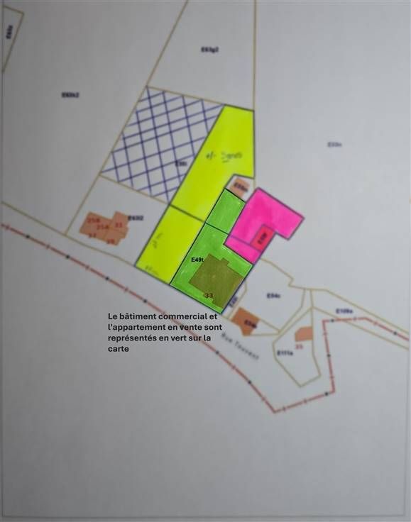
Sorry er is geen nederlandse vertaling beschikbaar. REF 7216 - Rue de Touvent, 33 - 6470 Sivry A Sivry, au bord de la frontière française (mais côté belge), à 2 pas du parc de loisirs le Val Joly et juste à côté du camping et terrain de caravanage "La Porte des Fagnes", découvrez cette magnifique opportunité à rafraichir, composée d'un vaste espace commercial et d'un appartement 3 chambres. L'espace commercial est divisé en 2 grandes parties : - Une première partie de +/- 90m2 servant autre fois de magasin de proximité (avec une forte demande en saison, grâce au camping voisin) - Une deuxième partie de près de 180m2 servant autre fois de bar / taverne avec une vaste salle pour les clients, un bar équipé, une cuisine, ... L'appartement situé au-dessus de la surface commerciale est idéal comme maison de commerce. Il propose 3 chambres, un bel espace living, une salle de bain, une cuisine et un espace grenier pouvant également être aménagé. L'ensemble est proposé à prix très attractif pour celui ou celle qui souhaite se lancer ou réaliser un investissement locatif. PEB D (Code unique 20200916006862) Faire offres à partir de 225.000 € - sous réserve d’acceptation du vendeur. Infos et visites via l’agence Century21 Horizon de Saint-Ghislain au 065 600 400
Type vastgoed Commercieel
Prijs 225.000
Bewoonbare opp. 227
Aantal badkamers 1