Te koop bouwgrond

Beschrijving van   

Vergelijk realty's

Te koop bouwgrond

bouwgrond bouwgrond bouwgrond bouwgrond
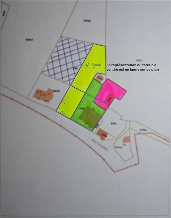
Sorry er is geen nederlandse vertaling beschikbaar. REF 7213 - rue de Touvent - 6470 Sivry Découvrez ce terrain situé à la frontière belgo-française (côté belge), dans un endroit calme et reposant ! Presque 6 ares de terrain à bâtir pour y construire votre maison de rêve grâce à ses 18 mètres de façade et ses 31 mètres de longueur. Vous profiterez également de +/- 9 ares de prairie pour bénéficier d'un grand jardin. Ce terrain est situé en zone d'habitat au plan de secteur avec orientation sud / sud-ouest. Faire offres à partir de 69.000 € -sous réserve d'acceptation des vendeurs. Renseignements via l'agence Century 21 Horizon au 0635/600.400
Type vastgoed Grond
Prijs 69.000